Search

Leave a Message

By providing your contact information to Carla Nix, your personal information will be processed in accordance with Carla Nix's Privacy Policy. By checking the box(es) below, you consent to receive communications regarding your real estate inquiries and related marketing and promotional updates in the manner selected by you. For SMS text messages, message frequency varies. Message and data rates may apply. You may opt out of receiving further communications from Carla Nix at any time. To opt out of receiving SMS text messages, reply STOP to unsubscribe.

Thank you for your message. We will be in touch with you shortly.

Explore Our Properties

Property Description

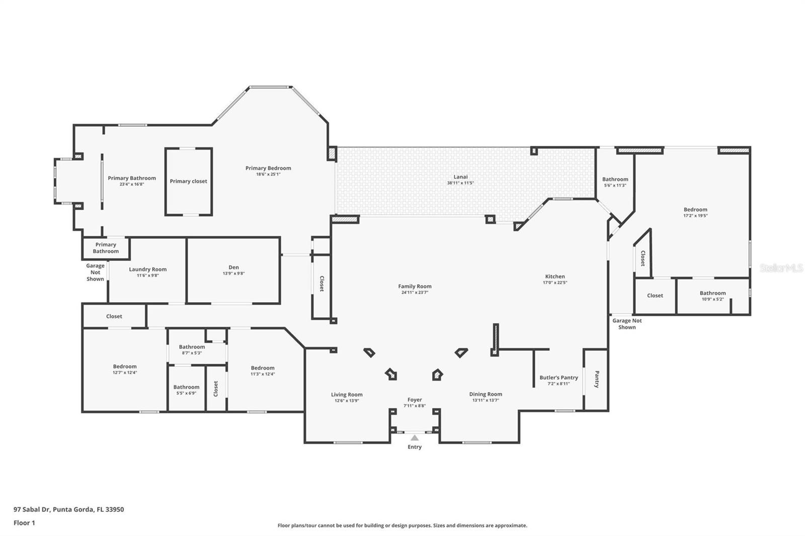
WATERFRONT LUXURY FOUND in this 2016 Built Custom 4-bedroom, 3.5-bathroom, 4 Car-Garage home with pool/spa, IMPACT WINDOWS & Sliders, a WHOLE HOME GENERATOR, and an In-Law Suite on a DOUBLE LOT totaling over 1/2 acre with NEW DOCK & 13,500lb lift moments from Charlotte Harbor with NO BRIDGES awaits new owners! On a corner lot with underground utilities, find a thoughtful design with amazing curb appeal including upgraded landscaping, and split garages/driveways with a large covered front porch reminiscent of Southern homes. Inside the foyer, enjoy 14' ceilings, engineered hardwood floors, 8' doors, and incredible wood-working throughout including tongue and groove ceilings, with a formal living room and dining room at the entrance with wainscoting, open to the large great room with vaulted ceilings with exposed wooden beams connecting all the way through this space and into the chef's kitchen, all overlooking the pool area and waterway beyond via pocket sliding glass doors. The kitchen is a DREAM with a breakfast bar, a separate island with second prep sink, a large 6 burner Miele gas stove with commercial hood, Miele microwave/built-in oven, and a new Samsung refrigerator. This area also has a butler's pantry with bar with wine fridge, a walk-in pantry, and connects back to the dining room. Also, off the kitchen, a dinette area overlooks the pool, and a dedicated guest/pool bath is ideally situated here. Through the barn door off the kitchen, enter the In-Law Suite with separate hallway with storage, a 1 car garage with 220 electric car hook-up and generator equipment, a kitchenette, a large bedroom with a spacious walk-in closet and en-suite bathroom with shower. This area also has private access to the pool through pocket sliding glass doors overlooking the water. On the other side of the home, off the great room, find the spacious primary suite with coffered ceilings with wood detail and a large sitting area, direct lanai access via sliding glass doors, a HUGE walk-in closet, and an en-suite bath with dual vanities and custom cabinetry, a separate tub, a walk-in shower with 4 shower heads and a stone bench, and a private water closet. Farther down the hall find 2 guest bedrooms with a Jack/Jill Bathroom with dual sinks and a tub/shower combo, a study with barn doors with a built-in Murphy bed and bookshelves, and a large laundry room with custom cabinetry a sink, and connection to the oversized and extra deep 3 car garage with epoxy floor. Outside on the lanai, enjoy a private oasis with an outdoor kitchen with propane grill/burner/commercial hood and bar, all overlooking the oversized heated pool and spa with extra space to relax both inside the screen enclosure and outside on the patio in the fenced backyard. Farther at the water's edge, a new 30' concrete dock and lift await with 99' of concrete seawall, maintained by the city. Keep your boat in the backyard less than 1/2 mile straight to Charlotte Harbor! There are SO MANY UPGRADES so be sure to ask for the full Features Sheet! This home is located nearby to downtown Punta Gorda, Fishermen's Village, near great golf, shopping, restaurants, and just across the harbor from Sunseeker Resort. Schedule your showing today!

Overview

Property Status
Sold
Lot Size
0.53 Acres
MLS ID
C7485842
Property Type
Residential
Year Built
2016

Features & Amenities

Total Area
7,157 Sq.Ft.
Neighborhood
Punta Gorda Isles
Architecture Styles
Custom, Florida
Water Frontage
Canal - Saltwater
View Description
Pool, Water
Stories
1
Garage Spaces
4.0
Water Source
Public
Utilites
BB/HS Internet Available, Cable Connected, Electricity Connected, Propane, Public, Sewer Connected, Sprinkler Meter, Underground Utilities, Water Connected
Pool
Child Safety Fence, Fiber Optic Lighting, Gunite, Heated, In Ground, Lighting, Outside Bath Access, Salt Water, Screen Enclosure
Roof
Metal
Lot Features
Cleared, Corner Lot, Flood Zone, City Limits, Near Golf Course, Near Marina, Oversized Lot, Street Dead-End, Paved
Parking
Driveway, Electric Vehicle Charging Station(s), Garage Door Opener, Garage Faces Side, Guest, Oversized, Split Garage, Workshop in Garage
Heat Type
Central, Electric
Air Conditioning
Central Air
Laundry Room
Inside, Laundry Room
Appliances
Bar Fridge, Built-In Oven, Convection Oven, Cooktop, Dishwasher, Disposal, Dryer, Gas Water Heater, Microwave, Range Hood, Refrigerator, Washer, Wine Refrigerator
Other Interior Features
Cathedral Ceiling(s), Ceiling Fans(s), Chair Rail, Coffered Ceiling(s), Crown Molding, Dry Bar, Eat-in Kitchen, High Ceilings, Kitchen/Family Room Combo, L Dining, Open Floorplan, Primary Bedroom Main Floor, Solid Surface Counters, Solid Wood Cabinets, Split Bedroom, Stone Counters, Thermostat, Walk-In Closet(s), Window Treatments
Sewer
Public Sewer
Substructure
Block, Stem Wall
Security Features
Security System
Other Exterior Features
Dog Run, Hurricane Shutters, Irrigation System, Lighting, Outdoor Grill, Outdoor Kitchen, Outdoor Shower, Private Mailbox, Sliding Doors, Sprinkler Metered
Sales Price
$2,100,000
Real Estate Tax
$19,471/yr
Zoning
GS-3.5

Downloads

97 SABAL DR

Schedule a Tour

We would love to help you see this beautiful home! As a full-service brokerage, we can help you tour. Please submit an offer, and answer questions about the buying process.

Thank you

for your interest in 97 SABAL DR, PUNTA GORDA, FL 33950

97 SABAL DR
Navigate
Punta Gorda Isles

Explore Punta Gorda Isles

read more

I'm Interested In

97 SABAL DR

or
  • CallCarla Nix

    License #274506448

    (941) 225-4663
  • Browse Other

    Featured Properties

    • SW SUNNYBREEZE RD For Sale

      $32,000,000

      SW SUNNYBREEZE RD, ARCADIA, FL 34269

    • 4135 KINGS HWY Pending

      $6,850,000

      4135 KINGS HWY, PUNTA GORDA, FL 33980

    • 5566 RIVER BAY DR For Sale

      $2,650,000

      5566 RIVER BAY DR, PUNTA GORDA, FL 33950

      • 3 Beds
      • 3 Baths
      • 3,279 Sq.Ft.
    • 6300 FLORIDA ST For Sale

      $2,500,000

      Unnamed US17 I75 EXIT 164 ST, PUNTA GORDA, FL 33950

    • 4531 GRASSY POINT BLVD Pending

      $1,995,000

      4531 GRASSY POINT BLVD, PORT CHARLOTTE, FL 33952

      • 4 Beds
      • 5 Baths
      • 4,752 Sq.Ft.
    • 39321 WASHINGTON LOOP RD For Sale

      $1,950,000

      39321 WASHINGTON LOOP RD, PUNTA GORDA, FL 33982

      • 5 Beds
      • 4 Baths
      • 5,463 Sq.Ft.
    • 6100 RIVERSIDE DR For Sale

      $1,840,000

      6100 RIVERSIDE DR, PUNTA GORDA, FL 33982

      • 3 Beds
      • 3 Baths
      • 2,369 Sq.Ft.
    • 3790 PEACE RIVER DR For Sale

      $1,750,000

      3790 PEACE RIVER DR, PUNTA GORDA, FL 33983

      • 4 Beds
      • 4 Baths
      • 3,712 Sq.Ft.
    • 1631 CASEY KEY DR For Sale

      $1,695,000

      1631 CASEY KEY DR, PUNTA GORDA, FL 33950

      • 4 Beds
      • 3 Baths
      • 2,606 Sq.Ft.
    • 3280 N ACCESS RD For Sale

      $1,500,000

      3278-3294 N ACCESS RD, ENGLEWOOD, FL 34224

    • 116 NORTHSHORE TER For Sale

      $1,415,000

      116 NORTHSHORE TER, PUNTA GORDA, FL 33980

      • 3 Beds
      • 3 Baths
      • 2,512 Sq.Ft.
    • 524 LA CARUNA CT For Sale

      $1,400,000

      524 LA CARUNA CT, PUNTA GORDA, FL 33950

      • 4 Beds
      • 4 Baths
      • 4,261 Sq.Ft.
    • 0997160030 BOLANDER TER For Sale

      $1,390,000

      0997160030 BOLANDER TER, NORTH PORT, FL 34287

      • 4 Beds
      • 3 Baths
      • 2,609 Sq.Ft.
    • 112 NORTHSHORE TER For Sale

      $1,365,000

      112 NORTHSHORE TER, PUNTA GORDA, FL 33980

      • 3 Beds
      • 3 Baths
      • 2,512 Sq.Ft.
    • 3564 PEACE RIVER DR For Sale

      $1,339,000

      3564 PEACE RIVER DR, PUNTA GORDA, FL 33983

      • 3 Beds
      • 3 Baths
      • 2,437 Sq.Ft.
    • 14150 OSTROM AVE For Sale

      $1,290,000

      14150 OSTROM AVE, PORT CHARLOTTE, FL 33981

      • 4 Beds
      • 3 Baths
      • 2,609 Sq.Ft.
    • 2385 PAPPAS TER For Sale

      $1,290,000

      2385 PAPPAS TER, PORT CHARLOTTE, FL 33981

      • 4 Beds
      • 3 Baths
      • 2,609 Sq.Ft.
    • 4013 BASTIA CT For Sale

      $1,229,900

      4013 BASTIA CT, PUNTA GORDA, FL 33950

      • 4 Beds
      • 3 Baths
      • 3,005 Sq.Ft.
    • 1434 CASEY KEY DR Pending

      $1,215,000

      1434 CASEY KEY DR, PUNTA GORDA, FL 33950

      • 4 Beds
      • 4 Baths
      • 2,513 Sq.Ft.
    • 2839 CORAL WAY For Sale

      $1,199,000

      2839 CORAL WAY, PUNTA GORDA, FL 33950

      • 3 Beds
      • 4 Baths
      • 4,639 Sq.Ft.
    • 12299 ALBRECHT TER For Sale

      $1,190,000

      12299 ALBRECHT TER, PORT CHARLOTTE, FL 33981

      • 4 Beds
      • 3 Baths
      • 2,609 Sq.Ft.
    • 630 CORONADO DR For Sale

      $1,149,900

      630 CORONADO DR, PUNTA GORDA, FL 33950

      • 3 Beds
      • 2 Baths
      • 2,159 Sq.Ft.
    • 360 CAPRI ISLES CT For Sale

      $1,099,000

      360 CAPRI ISLES CT, PUNTA GORDA, FL 33950

      • 3 Beds
      • 3 Baths
      • 2,528 Sq.Ft.
    • 5348 PALANGOS DR Pending

      $949,000

      5348 PALANGOS DR, PUNTA GORDA, FL 33982

      • 4 Beds
      • 3 Baths
      • 2,890 Sq.Ft.
    • 3360 BAL HARBOR BLVD For Sale

      $899,000

      3360 BAL HARBOR BLVD, PUNTA GORDA, FL 33950

      • 4 Beds
      • 2 Baths
      • 2,215 Sq.Ft.
    • 9610 SW YACHT DR For Sale

      $875,000

      9610 SW YACHT DR, ARCADIA, FL 34269

      • 5 Beds
      • 4 Baths
      • 3,684 Sq.Ft.
    • 197 TROPICANA DR #1522 For Sale

      $799,900

      197 TROPICANA DR #1522, PUNTA GORDA, FL 33950

      • 3 Beds
      • 3 Baths
      • 2,495 Sq.Ft.
    • 138 COLONIAL ST SW For Sale

      $795,000

      138 COLONIAL ST SW, PORT CHARLOTTE, FL 33952

      • 3 Beds
      • 3 Baths
      • 2,549 Sq.Ft.
    • 258 SHREVE ST For Sale

      $714,900

      258 SHREVE ST, PUNTA GORDA, FL 33950

      • 3 Beds
      • 2 Baths
      • 1,855 Sq.Ft.
    • 28401 COCO PALM DR For Sale

      $699,000

      28401 COCO PALM DR, PUNTA GORDA, FL 33982

      • 3 Beds
      • 3 Baths
      • 3,164 Sq.Ft.
    • 2358 EL CERITO CT For Sale

      $674,900

      2358 EL CERITO CT, PUNTA GORDA, FL 33950

      • 3 Beds
      • 3 Baths
      • 1,904 Sq.Ft.
    • 345 BELAIRE CT For Sale

      $664,900

      345 BELAIRE CT, PUNTA GORDA, FL 33950

      • 3 Beds
      • 2 Baths
      • 2,078 Sq.Ft.
    • 1241 ROYAL TERN DR Pending

      $599,000

      1241 ROYAL TERN DR, PUNTA GORDA, FL 33950

      • 3 Beds
      • 2 Baths
      • 1,849 Sq.Ft.
    • 93 VIVANTE BLVD #9336 For Sale

      $599,000

      93 VIVANTE BLVD #9336, PUNTA GORDA, FL 33950

      • 3 Beds
      • 3 Baths
      • 2,398 Sq.Ft.
    • 1111 LA SALINA CT For Sale

      $575,000

      1111 LA SALINA CT, PUNTA GORDA, FL 33950

      • 3 Beds
      • 2 Baths
      • 1,939 Sq.Ft.
    • 621 TRABUE AVE For Sale

      $549,900

      621 TRABUE AVE, PUNTA GORDA, FL 33950

      • 4 Beds
      • 2 Baths
      • 2,234 Sq.Ft.
    • 8313 SW SAND CRANE CIR For Sale

      $520,000

      8313 SW SAND CRANE - LOT 15 CIR, ARCADIA, FL 34269

      • 1 Bed
      • 1 Bath
      • 1,000 Sq.Ft.
    • 123 GILL ST Pending

      $499,000

      123 GILL ST, PUNTA GORDA, FL 33950

      • 4 Beds
      • 3 Baths
      • 1,960 Sq.Ft.
    • 8664 SW SAND CRANE CIR For Sale

      $479,000

      8664 SW SAND CRANE - LOT 46 CIR, ARCADIA, FL 34269

      • 1 Bed
      • 1 Bath
      • 865 Sq.Ft.
    • 9582 ARSIPE CIR For Sale

      $475,000

      9582 ARSIPE CIR, PORT CHARLOTTE, FL 33981

      • 3 Beds
      • 3 Baths
      • 1,938 Sq.Ft.
    • 23439 FREEPORT AVE For Sale

      $449,900

      23439 FREEPORT AVE, PORT CHARLOTTE, FL 33954

      • 3 Beds
      • 2 Baths
      • 2,116 Sq.Ft.
    • 8234 SW SAND CRANE CIR For Sale

      $449,000

      8234 SW SAND CRANE LOT 93 CIR, ARCADIA, FL 34269

      • 1 Bed
      • 1 Bath
      • 780 Sq.Ft.
    • 8574 SW SAND CRANE CIR For Sale

      $449,000

      8574 SW SAND CRANE - LOT 53 CIR, ARCADIA, FL 34269

      • 1 Bed
      • 1 Bath
      • 750 Sq.Ft.
    • 8306 SW SAND CRANE LOT 87 CIR For Sale

      $437,900

      8306 SW SAND CRANE LOT 87 CIR, ARCADIA, FL 34269

      • 1 Bed
      • 1 Bath
      • 1,000 Sq.Ft.
    • 3308 PURPLE MARTIN DR #122 Pending

      $424,900

      3308 PURPLE MARTIN DR #122, PUNTA GORDA, FL 33950

      • 3 Beds
      • 2 Baths
      • 1,882 Sq.Ft.
    • 7676 MIKASA DR For Sale

      $395,000

      7676 MIKASA DR, PUNTA GORDA, FL 33950

      • 4 Beds
      • 2 Baths
      • 1,846 Sq.Ft.
    • 7012 WATERFORD PKWY For Sale

      $370,000

      7012 WATERFORD PKWY, PUNTA GORDA, FL 33950

      • 4 Beds
      • 2 Baths
      • 1,846 Sq.Ft.
    • 1910 NW 27TH PL For Sale

      $339,000

      1910 NW 27TH PL, CAPE CORAL, FL 33993

      • 3 Beds
      • 2 Baths
      • 1,400 Sq.Ft.
    • 3216 PURPLE MARTIN DR #122 For Sale

      $325,000

      3216 PURPLE MARTIN DR #122, PUNTA GORDA, FL 33950

      • 2 Beds
      • 2 Baths
      • 1,460 Sq.Ft.
    • 258 SHADOW ST NW For Sale

      $310,000

      258 SHADOW ST NW, PORT CHARLOTTE, FL 33952

      • 3 Beds
      • 2 Baths
      • 1,487 Sq.Ft.
    View All Properties

    Follow Us On Instagram