Search

Leave a Message

By providing your contact information to Carla Nix, your personal information will be processed in accordance with Carla Nix's Privacy Policy. By checking the box(es) below, you consent to receive communications regarding your real estate inquiries and related marketing and promotional updates in the manner selected by you. For SMS text messages, message frequency varies. Message and data rates may apply. You may opt out of receiving further communications from Carla Nix at any time. To opt out of receiving SMS text messages, reply STOP to unsubscribe.

Thank you for your message. We will be in touch with you shortly.

Explore Our Properties

Property Description

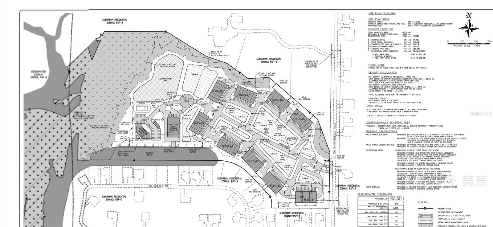
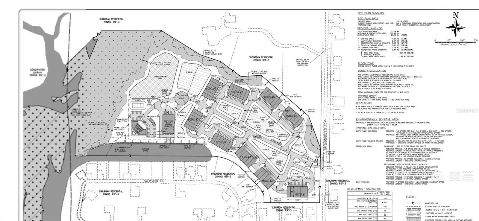
157+- ACRES ON THE PEACE RIVER - DEVELOPMENT OPPORTUNITY *Paradise Island*
An exceptional opportunity to acquire 157+- acres of unspoiled Old Florida beauty along the scenic Peace River. This rare offering combines natural waterfront charm with significant development potential, making it ideal for visionary builders, investors, or those seeking a legacy property.
Approximately 27+- acres of high and dry land provide a strong foundation for development, while the remaining acreage offers a stunning backdrop of native landscape, perfect for preserving natural aesthetics or creating a one-of-a-kind eco-focused project. Zoned ROI and A-5, the property allows for a wide range of possibilities including a private riverfront estate, boutique eco-resort, residential development, or mixed-use concept.
Developers will appreciate the groundwork already in place--previous approvals for up to 216 units offer a valuable head start for those looking to move forward with a residential project (documentation available upon request). Additionally, there is potential for up to 23 private docks, providing direct boating access to the river and out to the Gulf, a highly desirable feature in Southwest Florida waterfront communities.
Infrastructure is within reach, with water and sewer nearby, enhancing the feasibility and cost-efficiency of future development.
Strategically located with convenient access to Arcadia, Port Charlotte, and Punta Gorda, the property also offers easy connectivity to regional travel hubs including Punta Gorda Airport and Southwest Florida International Airport.
Whether you envision a luxury riverfront community, a serene eco-retreat, or a private estate surrounded by nature, this property delivers the scale, location, and flexibility to bring your vision to life.

Overview

Property Status
For Sale
Lot Size
157.19 Acres
MLS ID
C7524295
Property Type
Land

Features & Amenities

Neighborhood
Arcadia
Water Frontage
River Front
View Description
Park/Greenbelt, Trees/Woods, Water
Water Source
None
Utilites
BB/HS Internet Available, Electrical Nearby, Sewer Nearby, Water Nearby
Lot Features
Flood Plain/Bottom Land, Greenbelt, In County, Near Golf Course, Near Marina, Oversized Lot, Private, Room For Pool, Paved, Wooded
Sewer
None
Sales Price
$32,000,000
Real Estate Tax
$11,082/yr
Zoning
ROI

Downloads

SW SUNNYBREEZE RD

Schedule a Tour

We would love to help you see this beautiful home! As a full-service brokerage, we can help you tour. Please submit an offer, and answer questions about the buying process.

Thank you

for your interest in SW SUNNYBREEZE RD, ARCADIA, FL 34269

SW SUNNYBREEZE RD
Navigate
Arcadia

Explore Arcadia

read more

Mortgage Calculator

Estimate your monthly mortgage payment, including the principal and interest, property taxes, and HOA. Adjust the values to generate a more accurate rate.
$0,000 Your Payment 20 15 65
$0,000 Your Payment

I'm Interested In

SW SUNNYBREEZE RD

or Contact

Browse Other

Featured Properties

  • SW SUNNYBREEZE RD For Sale

    $32,000,000

    SW SUNNYBREEZE RD, ARCADIA, FL 34269

  • 4135 KINGS HWY Pending

    $6,850,000

    4135 KINGS HWY, PUNTA GORDA, FL 33980

  • 5566 RIVER BAY DR For Sale

    $2,650,000

    5566 RIVER BAY DR, PUNTA GORDA, FL 33950

    • 3 Beds
    • 3 Baths
    • 3,279 Sq.Ft.
  • 6300 FLORIDA ST For Sale

    $2,500,000

    Unnamed US17 I75 EXIT 164 ST, PUNTA GORDA, FL 33950

  • 4531 GRASSY POINT BLVD Pending

    $1,995,000

    4531 GRASSY POINT BLVD, PORT CHARLOTTE, FL 33952

    • 4 Beds
    • 5 Baths
    • 4,752 Sq.Ft.
  • 39321 WASHINGTON LOOP RD For Sale

    $1,950,000

    39321 WASHINGTON LOOP RD, PUNTA GORDA, FL 33982

    • 5 Beds
    • 4 Baths
    • 5,463 Sq.Ft.
  • 6100 RIVERSIDE DR For Sale

    $1,840,000

    6100 RIVERSIDE DR, PUNTA GORDA, FL 33982

    • 3 Beds
    • 3 Baths
    • 2,369 Sq.Ft.
  • 3790 PEACE RIVER DR For Sale

    $1,750,000

    3790 PEACE RIVER DR, PUNTA GORDA, FL 33983

    • 4 Beds
    • 4 Baths
    • 3,712 Sq.Ft.
  • 1631 CASEY KEY DR For Sale

    $1,695,000

    1631 CASEY KEY DR, PUNTA GORDA, FL 33950

    • 4 Beds
    • 3 Baths
    • 2,606 Sq.Ft.
  • 3280 N ACCESS RD For Sale

    $1,500,000

    3278-3294 N ACCESS RD, ENGLEWOOD, FL 34224

  • 116 NORTHSHORE TER For Sale

    $1,415,000

    116 NORTHSHORE TER, PUNTA GORDA, FL 33980

    • 3 Beds
    • 3 Baths
    • 2,512 Sq.Ft.
  • 524 LA CARUNA CT For Sale

    $1,400,000

    524 LA CARUNA CT, PUNTA GORDA, FL 33950

    • 4 Beds
    • 4 Baths
    • 4,261 Sq.Ft.
  • 0997160030 BOLANDER TER For Sale

    $1,390,000

    0997160030 BOLANDER TER, NORTH PORT, FL 34287

    • 4 Beds
    • 3 Baths
    • 2,609 Sq.Ft.
  • 112 NORTHSHORE TER For Sale

    $1,365,000

    112 NORTHSHORE TER, PUNTA GORDA, FL 33980

    • 3 Beds
    • 3 Baths
    • 2,512 Sq.Ft.
  • 3564 PEACE RIVER DR For Sale

    $1,339,000

    3564 PEACE RIVER DR, PUNTA GORDA, FL 33983

    • 3 Beds
    • 3 Baths
    • 2,437 Sq.Ft.
  • 14150 OSTROM AVE For Sale

    $1,290,000

    14150 OSTROM AVE, PORT CHARLOTTE, FL 33981

    • 4 Beds
    • 3 Baths
    • 2,609 Sq.Ft.
  • 2385 PAPPAS TER For Sale

    $1,290,000

    2385 PAPPAS TER, PORT CHARLOTTE, FL 33981

    • 4 Beds
    • 3 Baths
    • 2,609 Sq.Ft.
  • 4013 BASTIA CT For Sale

    $1,229,900

    4013 BASTIA CT, PUNTA GORDA, FL 33950

    • 4 Beds
    • 3 Baths
    • 3,005 Sq.Ft.
  • 1434 CASEY KEY DR Pending

    $1,215,000

    1434 CASEY KEY DR, PUNTA GORDA, FL 33950

    • 4 Beds
    • 4 Baths
    • 2,513 Sq.Ft.
  • 2839 CORAL WAY Pending

    $1,199,000

    2839 CORAL WAY, PUNTA GORDA, FL 33950

    • 3 Beds
    • 4 Baths
    • 4,639 Sq.Ft.
  • 12299 ALBRECHT TER For Sale

    $1,190,000

    12299 ALBRECHT TER, PORT CHARLOTTE, FL 33981

    • 4 Beds
    • 3 Baths
    • 2,609 Sq.Ft.
  • 630 CORONADO DR For Sale

    $1,149,900

    630 CORONADO DR, PUNTA GORDA, FL 33950

    • 3 Beds
    • 2 Baths
    • 2,159 Sq.Ft.
  • 360 CAPRI ISLES CT For Sale

    $1,099,000

    360 CAPRI ISLES CT, PUNTA GORDA, FL 33950

    • 3 Beds
    • 3 Baths
    • 2,528 Sq.Ft.
  • 5348 PALANGOS DR Pending

    $949,000

    5348 PALANGOS DR, PUNTA GORDA, FL 33982

    • 4 Beds
    • 3 Baths
    • 2,890 Sq.Ft.
  • 3360 BAL HARBOR BLVD For Sale

    $899,000

    3360 BAL HARBOR BLVD, PUNTA GORDA, FL 33950

    • 4 Beds
    • 2 Baths
    • 2,215 Sq.Ft.
  • 9610 SW YACHT DR For Sale

    $875,000

    9610 SW YACHT DR, ARCADIA, FL 34269

    • 5 Beds
    • 4 Baths
    • 3,684 Sq.Ft.
  • 197 TROPICANA DR #1522 For Sale

    $799,900

    197 TROPICANA DR #1522, PUNTA GORDA, FL 33950

    • 3 Beds
    • 3 Baths
    • 2,495 Sq.Ft.
  • 138 COLONIAL ST SW For Sale

    $795,000

    138 COLONIAL ST SW, PORT CHARLOTTE, FL 33952

    • 3 Beds
    • 3 Baths
    • 2,549 Sq.Ft.
  • 258 SHREVE ST For Sale

    $714,900

    258 SHREVE ST, PUNTA GORDA, FL 33950

    • 3 Beds
    • 2 Baths
    • 1,855 Sq.Ft.
  • 28401 COCO PALM DR For Sale

    $699,000

    28401 COCO PALM DR, PUNTA GORDA, FL 33982

    • 3 Beds
    • 3 Baths
    • 3,164 Sq.Ft.
  • 2358 EL CERITO CT For Sale

    $674,900

    2358 EL CERITO CT, PUNTA GORDA, FL 33950

    • 3 Beds
    • 3 Baths
    • 1,904 Sq.Ft.
  • 345 BELAIRE CT For Sale

    $664,900

    345 BELAIRE CT, PUNTA GORDA, FL 33950

    • 3 Beds
    • 2 Baths
    • 2,078 Sq.Ft.
  • 1241 ROYAL TERN DR Pending

    $599,000

    1241 ROYAL TERN DR, PUNTA GORDA, FL 33950

    • 3 Beds
    • 2 Baths
    • 1,849 Sq.Ft.
  • 93 VIVANTE BLVD #9336 For Sale

    $599,000

    93 VIVANTE BLVD #9336, PUNTA GORDA, FL 33950

    • 3 Beds
    • 3 Baths
    • 2,398 Sq.Ft.
  • 1111 LA SALINA CT For Sale

    $575,000

    1111 LA SALINA CT, PUNTA GORDA, FL 33950

    • 3 Beds
    • 2 Baths
    • 1,939 Sq.Ft.
  • 621 TRABUE AVE For Sale

    $549,900

    621 TRABUE AVE, PUNTA GORDA, FL 33950

    • 4 Beds
    • 2 Baths
    • 2,234 Sq.Ft.
  • 8313 SW SAND CRANE CIR For Sale

    $520,000

    8313 SW SAND CRANE - LOT 15 CIR, ARCADIA, FL 34269

    • 1 Bed
    • 1 Bath
    • 1,000 Sq.Ft.
  • 123 GILL ST Pending

    $499,000

    123 GILL ST, PUNTA GORDA, FL 33950

    • 4 Beds
    • 3 Baths
    • 1,960 Sq.Ft.
  • 8664 SW SAND CRANE CIR For Sale

    $479,000

    8664 SW SAND CRANE - LOT 46 CIR, ARCADIA, FL 34269

    • 1 Bed
    • 1 Bath
    • 865 Sq.Ft.
  • 9582 ARSIPE CIR For Sale

    $475,000

    9582 ARSIPE CIR, PORT CHARLOTTE, FL 33981

    • 3 Beds
    • 3 Baths
    • 1,938 Sq.Ft.
  • 8234 SW SAND CRANE CIR For Sale

    $449,000

    8234 SW SAND CRANE LOT 93 CIR, ARCADIA, FL 34269

    • 1 Bed
    • 1 Bath
    • 780 Sq.Ft.
  • 8574 SW SAND CRANE CIR For Sale

    $449,000

    8574 SW SAND CRANE - LOT 53 CIR, ARCADIA, FL 34269

    • 1 Bed
    • 1 Bath
    • 750 Sq.Ft.
  • 23439 FREEPORT AVE For Sale

    $439,900

    23439 FREEPORT AVE, PORT CHARLOTTE, FL 33954

    • 3 Beds
    • 2 Baths
    • 2,116 Sq.Ft.
  • 8306 SW SAND CRANE LOT 87 CIR For Sale

    $437,900

    8306 SW SAND CRANE LOT 87 CIR, ARCADIA, FL 34269

    • 1 Bed
    • 1 Bath
    • 1,000 Sq.Ft.
  • 3308 PURPLE MARTIN DR #122 Pending

    $424,900

    3308 PURPLE MARTIN DR #122, PUNTA GORDA, FL 33950

    • 3 Beds
    • 2 Baths
    • 1,882 Sq.Ft.
  • 7676 MIKASA DR For Sale

    $395,000

    7676 MIKASA DR, PUNTA GORDA, FL 33950

    • 4 Beds
    • 2 Baths
    • 1,846 Sq.Ft.
  • 7012 WATERFORD PKWY For Sale

    $370,000

    7012 WATERFORD PKWY, PUNTA GORDA, FL 33950

    • 4 Beds
    • 2 Baths
    • 1,846 Sq.Ft.
  • 1910 NW 27TH PL For Sale

    $339,000

    1910 NW 27TH PL, CAPE CORAL, FL 33993

    • 3 Beds
    • 2 Baths
    • 1,400 Sq.Ft.
  • 3216 PURPLE MARTIN DR #122 For Sale

    $325,000

    3216 PURPLE MARTIN DR #122, PUNTA GORDA, FL 33950

    • 2 Beds
    • 2 Baths
    • 1,460 Sq.Ft.
  • 258 SHADOW ST NW For Sale

    $310,000

    258 SHADOW ST NW, PORT CHARLOTTE, FL 33952

    • 3 Beds
    • 2 Baths
    • 1,487 Sq.Ft.
View All Properties

Follow Us On Instagram