Search

Leave a Message

By providing your contact information to Carla Nix, your personal information will be processed in accordance with Carla Nix's Privacy Policy. By checking the box(es) below, you consent to receive communications regarding your real estate inquiries and related marketing and promotional updates in the manner selected by you. For SMS text messages, message frequency varies. Message and data rates may apply. You may opt out of receiving further communications from Carla Nix at any time. To opt out of receiving SMS text messages, reply STOP to unsubscribe.

Thank you for your message. We will be in touch with you shortly.

Explore Our Properties

Property Description

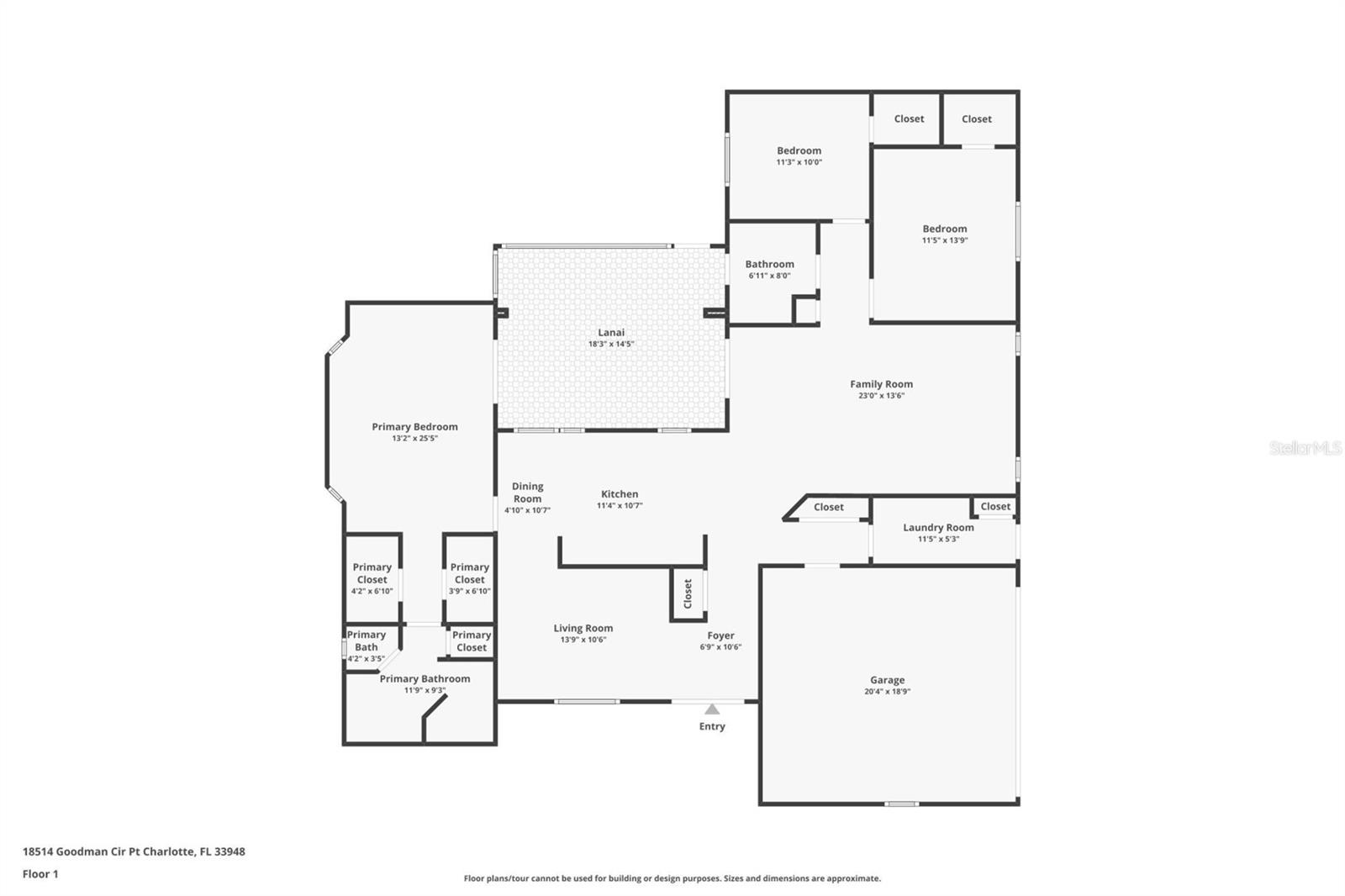
One or more photo(s) has been virtually staged. This lovely THREE-BEDROOM, TWO-BATH home sits on a generous CORNER LOT in a peaceful and friendly neighborhood. The split floor plan layout includes a family room and a large living room, providing ample space for relaxation and entertainment. Recent updates enhance the property, featuring a modern HVAC SYSTEM FROM 2018, a BRAND-NEW 50-GALLON WATER HEATER, a NEW ROOF, and newly installed GUTTERS, with the EXTERIOR FRESHLY PAINTED IN 2023. The kitchen is spacious and boasts beautiful GRANITE COUNTERTOPS, perfect for cooking and gathering. The inviting lanai is equipped with a SPA HOOKUP, while the expansive yard includes a convenient STORAGE SHED. This home also comes with a TRANSFERABLE FLOOD INSURANCE POLICY and features HURRICANE PANELS for added safety and peace of mind. The 2-car side garage has plenty of space and offers a screen slider and features pull-down stairs for easy access to the attic. The location is perfect for quick access to boat ramps, beautiful beaches, shopping, and dining options, providing all the conveniences you could want within just minutes.
BE SURE TO CLICK THE FULL VIRTUAL TOUR LINKS FOR DETAILS!

Overview

Property Status
Sold
Lot Size
0.27 Acres
MLS ID
C7501049
Property Type
Residential
Year Built
2005

Features & Amenities

Total Area
2,212 Sq.Ft.
Architecture Styles
Contemporary
Stories
1
Garage Spaces
2.0
Water Source
Public
Utilites
BB/HS Internet Available, Cable Available, Electricity Available, Sewer Available, Water Available
Roof
Shingle
Lot Features
Corner Lot, Flood Insurance Required, Landscaped, Oversized Lot, Sloped
Parking
Driveway, Garage Faces Side, Off Street
Heat Type
Central, Electric
Air Conditioning
Central Air
Laundry Room
Inside
Appliances
Dishwasher, Dryer, Microwave, Refrigerator, Washer
Other Interior Features
Ceiling Fans(s), Walk-In Closet(s)
Sewer
Public Sewer
Substructure
Slab
Other Exterior Features
Rain Gutters, Sliding Doors
Elementary School
Meadow Park Elementary
Middle School
Murdock Middle
High School
Port Charlotte High
Sales Price
$240,000
Real Estate Tax
$2,999/yr
Zoning
RSF3.5

Downloads

18514 GOODMAN CIR

Schedule a Tour

We would love to help you see this beautiful home! As a full-service brokerage, we can help you tour. Please submit an offer, and answer questions about the buying process.

Thank you

for your interest in 18514 GOODMAN CIR, PORT CHARLOTTE, FL 33948

18514 GOODMAN CIR
Navigate
18514 GOODMAN CIR
explore in 3d

I'm Interested In

18514 GOODMAN CIR

or Contact

Browse Other

Featured Properties

  • SW SUNNYBREEZE RD For Sale

    $32,000,000

    SW SUNNYBREEZE RD, ARCADIA, FL 34269

  • 4135 KINGS HWY Pending

    $6,850,000

    4135 KINGS HWY, PUNTA GORDA, FL 33980

  • 5566 RIVER BAY DR For Sale

    $2,650,000

    5566 RIVER BAY DR, PUNTA GORDA, FL 33950

    • 3 Beds
    • 3 Baths
    • 3,279 Sq.Ft.
  • 6300 FLORIDA ST For Sale

    $2,500,000

    Unnamed US17 I75 EXIT 164 ST, PUNTA GORDA, FL 33950

  • 4531 GRASSY POINT BLVD Pending

    $1,995,000

    4531 GRASSY POINT BLVD, PORT CHARLOTTE, FL 33952

    • 4 Beds
    • 5 Baths
    • 4,752 Sq.Ft.
  • 39321 WASHINGTON LOOP RD For Sale

    $1,950,000

    39321 WASHINGTON LOOP RD, PUNTA GORDA, FL 33982

    • 5 Beds
    • 4 Baths
    • 5,463 Sq.Ft.
  • 6100 RIVERSIDE DR For Sale

    $1,840,000

    6100 RIVERSIDE DR, PUNTA GORDA, FL 33982

    • 3 Beds
    • 3 Baths
    • 2,369 Sq.Ft.
  • 3790 PEACE RIVER DR For Sale

    $1,750,000

    3790 PEACE RIVER DR, PUNTA GORDA, FL 33983

    • 4 Beds
    • 4 Baths
    • 3,712 Sq.Ft.
  • 1631 CASEY KEY DR For Sale

    $1,695,000

    1631 CASEY KEY DR, PUNTA GORDA, FL 33950

    • 4 Beds
    • 3 Baths
    • 2,606 Sq.Ft.
  • 3280 N ACCESS RD For Sale

    $1,500,000

    3278-3294 N ACCESS RD, ENGLEWOOD, FL 34224

  • 116 NORTHSHORE TER For Sale

    $1,415,000

    116 NORTHSHORE TER, PUNTA GORDA, FL 33980

    • 3 Beds
    • 3 Baths
    • 2,512 Sq.Ft.
  • 524 LA CARUNA CT For Sale

    $1,400,000

    524 LA CARUNA CT, PUNTA GORDA, FL 33950

    • 4 Beds
    • 4 Baths
    • 4,261 Sq.Ft.
  • 0997160030 BOLANDER TER For Sale

    $1,390,000

    0997160030 BOLANDER TER, NORTH PORT, FL 34287

    • 4 Beds
    • 3 Baths
    • 2,609 Sq.Ft.
  • 112 NORTHSHORE TER For Sale

    $1,365,000

    112 NORTHSHORE TER, PUNTA GORDA, FL 33980

    • 3 Beds
    • 3 Baths
    • 2,512 Sq.Ft.
  • 3564 PEACE RIVER DR For Sale

    $1,339,000

    3564 PEACE RIVER DR, PUNTA GORDA, FL 33983

    • 3 Beds
    • 3 Baths
    • 2,437 Sq.Ft.
  • 14150 OSTROM AVE For Sale

    $1,290,000

    14150 OSTROM AVE, PORT CHARLOTTE, FL 33981

    • 4 Beds
    • 3 Baths
    • 2,609 Sq.Ft.
  • 2385 PAPPAS TER For Sale

    $1,290,000

    2385 PAPPAS TER, PORT CHARLOTTE, FL 33981

    • 4 Beds
    • 3 Baths
    • 2,609 Sq.Ft.
  • 4013 BASTIA CT For Sale

    $1,229,900

    4013 BASTIA CT, PUNTA GORDA, FL 33950

    • 4 Beds
    • 3 Baths
    • 3,005 Sq.Ft.
  • 1434 CASEY KEY DR Pending

    $1,215,000

    1434 CASEY KEY DR, PUNTA GORDA, FL 33950

    • 4 Beds
    • 4 Baths
    • 2,513 Sq.Ft.
  • 2839 CORAL WAY For Sale

    $1,199,000

    2839 CORAL WAY, PUNTA GORDA, FL 33950

    • 3 Beds
    • 4 Baths
    • 4,639 Sq.Ft.
  • 12299 ALBRECHT TER For Sale

    $1,190,000

    12299 ALBRECHT TER, PORT CHARLOTTE, FL 33981

    • 4 Beds
    • 3 Baths
    • 2,609 Sq.Ft.
  • 630 CORONADO DR For Sale

    $1,149,900

    630 CORONADO DR, PUNTA GORDA, FL 33950

    • 3 Beds
    • 2 Baths
    • 2,159 Sq.Ft.
  • 360 CAPRI ISLES CT For Sale

    $1,099,000

    360 CAPRI ISLES CT, PUNTA GORDA, FL 33950

    • 3 Beds
    • 3 Baths
    • 2,528 Sq.Ft.
  • 5348 PALANGOS DR Pending

    $949,000

    5348 PALANGOS DR, PUNTA GORDA, FL 33982

    • 4 Beds
    • 3 Baths
    • 2,890 Sq.Ft.
  • 3360 BAL HARBOR BLVD For Sale

    $899,000

    3360 BAL HARBOR BLVD, PUNTA GORDA, FL 33950

    • 4 Beds
    • 2 Baths
    • 2,215 Sq.Ft.
  • 9610 SW YACHT DR For Sale

    $875,000

    9610 SW YACHT DR, ARCADIA, FL 34269

    • 5 Beds
    • 4 Baths
    • 3,684 Sq.Ft.
  • 197 TROPICANA DR #1522 For Sale

    $799,900

    197 TROPICANA DR #1522, PUNTA GORDA, FL 33950

    • 3 Beds
    • 3 Baths
    • 2,495 Sq.Ft.
  • 138 COLONIAL ST SW For Sale

    $795,000

    138 COLONIAL ST SW, PORT CHARLOTTE, FL 33952

    • 3 Beds
    • 3 Baths
    • 2,549 Sq.Ft.
  • 258 SHREVE ST For Sale

    $714,900

    258 SHREVE ST, PUNTA GORDA, FL 33950

    • 3 Beds
    • 2 Baths
    • 1,855 Sq.Ft.
  • 28401 COCO PALM DR For Sale

    $699,000

    28401 COCO PALM DR, PUNTA GORDA, FL 33982

    • 3 Beds
    • 3 Baths
    • 3,164 Sq.Ft.
  • 2358 EL CERITO CT For Sale

    $674,900

    2358 EL CERITO CT, PUNTA GORDA, FL 33950

    • 3 Beds
    • 3 Baths
    • 1,904 Sq.Ft.
  • 345 BELAIRE CT For Sale

    $664,900

    345 BELAIRE CT, PUNTA GORDA, FL 33950

    • 3 Beds
    • 2 Baths
    • 2,078 Sq.Ft.
  • 1241 ROYAL TERN DR Pending

    $599,000

    1241 ROYAL TERN DR, PUNTA GORDA, FL 33950

    • 3 Beds
    • 2 Baths
    • 1,849 Sq.Ft.
  • 93 VIVANTE BLVD #9336 For Sale

    $599,000

    93 VIVANTE BLVD #9336, PUNTA GORDA, FL 33950

    • 3 Beds
    • 3 Baths
    • 2,398 Sq.Ft.
  • 1111 LA SALINA CT For Sale

    $575,000

    1111 LA SALINA CT, PUNTA GORDA, FL 33950

    • 3 Beds
    • 2 Baths
    • 1,939 Sq.Ft.
  • 621 TRABUE AVE For Sale

    $549,900

    621 TRABUE AVE, PUNTA GORDA, FL 33950

    • 4 Beds
    • 2 Baths
    • 2,234 Sq.Ft.
  • 8313 SW SAND CRANE CIR For Sale

    $520,000

    8313 SW SAND CRANE - LOT 15 CIR, ARCADIA, FL 34269

    • 1 Bed
    • 1 Bath
    • 1,000 Sq.Ft.
  • 123 GILL ST Pending

    $499,000

    123 GILL ST, PUNTA GORDA, FL 33950

    • 4 Beds
    • 3 Baths
    • 1,960 Sq.Ft.
  • 8664 SW SAND CRANE CIR For Sale

    $479,000

    8664 SW SAND CRANE - LOT 46 CIR, ARCADIA, FL 34269

    • 1 Bed
    • 1 Bath
    • 865 Sq.Ft.
  • 9582 ARSIPE CIR For Sale

    $475,000

    9582 ARSIPE CIR, PORT CHARLOTTE, FL 33981

    • 3 Beds
    • 3 Baths
    • 1,938 Sq.Ft.
  • 23439 FREEPORT AVE For Sale

    $449,900

    23439 FREEPORT AVE, PORT CHARLOTTE, FL 33954

    • 3 Beds
    • 2 Baths
    • 2,116 Sq.Ft.
  • 8234 SW SAND CRANE CIR For Sale

    $449,000

    8234 SW SAND CRANE LOT 93 CIR, ARCADIA, FL 34269

    • 1 Bed
    • 1 Bath
    • 780 Sq.Ft.
  • 8574 SW SAND CRANE CIR For Sale

    $449,000

    8574 SW SAND CRANE - LOT 53 CIR, ARCADIA, FL 34269

    • 1 Bed
    • 1 Bath
    • 750 Sq.Ft.
  • 8306 SW SAND CRANE LOT 87 CIR For Sale

    $437,900

    8306 SW SAND CRANE LOT 87 CIR, ARCADIA, FL 34269

    • 1 Bed
    • 1 Bath
    • 1,000 Sq.Ft.
  • 3308 PURPLE MARTIN DR #122 Pending

    $424,900

    3308 PURPLE MARTIN DR #122, PUNTA GORDA, FL 33950

    • 3 Beds
    • 2 Baths
    • 1,882 Sq.Ft.
  • 7676 MIKASA DR For Sale

    $395,000

    7676 MIKASA DR, PUNTA GORDA, FL 33950

    • 4 Beds
    • 2 Baths
    • 1,846 Sq.Ft.
  • 7012 WATERFORD PKWY For Sale

    $380,000

    7012 WATERFORD PKWY, PUNTA GORDA, FL 33950

    • 4 Beds
    • 2 Baths
    • 1,846 Sq.Ft.
  • 1910 NW 27TH PL For Sale

    $339,000

    1910 NW 27TH PL, CAPE CORAL, FL 33993

    • 3 Beds
    • 2 Baths
    • 1,400 Sq.Ft.
  • 3216 PURPLE MARTIN DR #122 For Sale

    $325,000

    3216 PURPLE MARTIN DR #122, PUNTA GORDA, FL 33950

    • 2 Beds
    • 2 Baths
    • 1,460 Sq.Ft.
  • 258 SHADOW ST NW For Sale

    $310,000

    258 SHADOW ST NW, PORT CHARLOTTE, FL 33952

    • 3 Beds
    • 2 Baths
    • 1,487 Sq.Ft.
View All Properties

Follow Us On Instagram