Search

Leave a Message

By providing your contact information to Carla Nix, your personal information will be processed in accordance with Carla Nix's Privacy Policy. By checking the box(es) below, you consent to receive communications regarding your real estate inquiries and related marketing and promotional updates in the manner selected by you. For SMS text messages, message frequency varies. Message and data rates may apply. You may opt out of receiving further communications from Carla Nix at any time. To opt out of receiving SMS text messages, reply STOP to unsubscribe.

Thank you for your message. We will be in touch with you shortly.

Explore Our Properties

Property Description

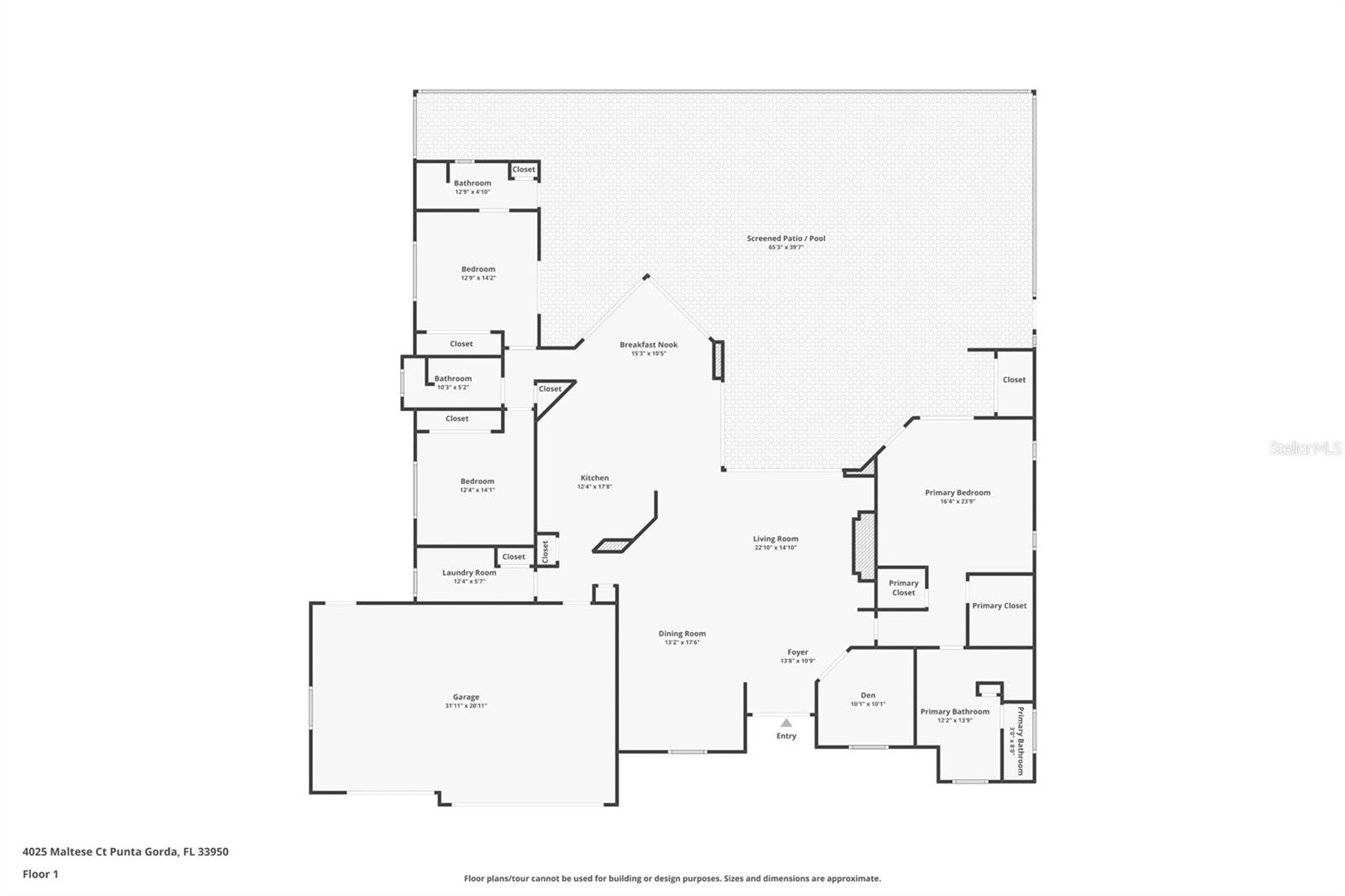
A rare gem in one of Southwest Florida's most desirable neighborhoods, this exceptional waterfront property offers the perfect blend of luxury, comfort, and convenience. Situated in Burnt Store Isles, the home boasts sailboat access to Charlotte Harbor and the Gulf of Mexico, offering breathtaking views and unparalleled access to water. Spanning over a prime lot with 91 feet of concrete seawall, the property features a 50-foot concrete dock equipped with water and electric service, plus a 20,000 lb. boat lift, making it an ideal haven for boating enthusiasts. Designed and built by the renowned Fero Builders, this stunning luxury pool home exudes sophisticated charm and craftsmanship. With 3 spacious bedrooms, 3 luxurious bathrooms, and a 3-car garage, it also includes a dedicated office/den space. Every detail of this home has been carefully considered to provide an opulent living experience. Expansive windows capture enchanting sunrises and sunsets from nearly every room, with over 2,400 total square feet of refined living space. The inviting Great Room features soaring volume ceilings with double tray designs, elegant crown molding, and gleaming tile floors throughout. The seamless flow into the dining area and built-in custom shelving adds an extra layer of architectural sophistication.
Designed for entertaining and relaxation, the home opens to a resort-style pool and lanai area through zero-corner sliding glass doors, offering unobstructed views of the tranquil waterfront. The chef's kitchen serves as the centerpiece of the home, showcasing exquisite granite countertops, matching tile backsplashes, a breakfast bar, custom cabinetry, a pantry, and top-of-the-line stainless steel appliances, including an induction cooktop. The cozy breakfast nook provides the perfect spot to enjoy peaceful views of the pool and canal. The opulent primary suite features private pool access, plush Berber carpeting, and two custom walk-in closets with built-in loft storage. The spa-like en-suite bathroom offers a luxurious Roman shower, a relaxing garden tub, and dual vanities with stunning quartz countertops. Privacy and comfort abound in the guest wing, which includes two spacious bedrooms, each with a private en-suite bathroom featuring Roman showers. This thoughtful layout ensures a serene and tranquil retreat for guests. For those who work from home, the office/den is a standout feature, with French doors, built-in bookshelves, and a custom desk. Step outside to your oversized screened lanai, which features a sparkling saltwater heated pool and spa, surrounded by Travertine Sandstone paver deck flooring. An outdoor shower adds an extra touch of luxury, while the Full Mansard screen offers sweeping, panoramic views of the serene waterfront canal. Additional highlights include a dedicated laundry room, an oversized 3-car garage with epoxy flooring and ample storage, tray ceilings throughout, a generator hookup, central vacuum system, irrigation, new tile roof (2023), new A/C (2024), new water heater (2023), and hurricane protection features. Located just minutes from historic downtown Punta Gorda, Fisherman's Village, and world-class restaurants, shopping, and waterfront parks, this home offers both tranquility and accessibility. Conveniently close to I-75, US-41, and two major airports, as well as Saint Andrew's Golf Club, it is the perfect retreat for those seeking both privacy and easy access to the best that Southwest Florida has to offer.

Overview

Property Status
Sold
Lot Size
0.27 Acres
MLS ID
C7501811
Property Type
Residential
Year Built
2004

Features & Amenities

Total Area
3,496 Sq.Ft.
Water Frontage
Canal - Saltwater
View Description
Pool, Water
Stories
1
Garage Spaces
3.0
Water Source
Public
Utilites
BB/HS Internet Available, Cable Available, Cable Connected, Electricity Available, Electricity Connected, Phone Available, Public, Sewer Connected, Water Connected
Pool
Gunite, Heated, In Ground, Lighting, Salt Water, Screen Enclosure
Roof
Tile
Lot Features
Cleared, Cul-De-Sac, Landscaped, Near Golf Course, Oversized Lot, Street Dead-End, Paved
Parking
Circular Driveway, Driveway, Garage Door Opener, Oversized
Heat Type
Central, Electric
Air Conditioning
Central Air
Laundry Room
Inside, Laundry Room
Appliances
Built-In Oven, Cooktop, Dishwasher, Disposal, Dryer, Electric Water Heater, Microwave, Refrigerator, Washer, Wine Refrigerator
Other Interior Features
Built-in Features, Cathedral Ceiling(s), Ceiling Fans(s), Central Vaccum, Crown Molding, High Ceilings, Living Room/Dining Room Combo, Open Floorplan, Primary Bedroom Main Floor, Split Bedroom, Stone Counters, Tray Ceiling(s), Walk-In Closet(s)
Sewer
Public Sewer
Substructure
Slab
Other Exterior Features
Hurricane Shutters, Lighting, Outdoor Shower, Rain Gutters, Sliding Doors
Sales Price
$940,000
Real Estate Tax
$8,143/yr
Zoning
GS-3.5

Downloads

4025 MALTESE CT

Schedule a Tour

We would love to help you see this beautiful home! As a full-service brokerage, we can help you tour. Please submit an offer, and answer questions about the buying process.

Thank you

for your interest in 4025 MALTESE CT, PUNTA GORDA, FL 33950

4025 MALTESE CT
Navigate
4025 MALTESE CT
explore in 3d

I'm Interested In

4025 MALTESE CT

or
  • CallLaura Frantz

    License #3263684

    (941) 916-8148
  • Browse Other

    Featured Properties

    • SW SUNNYBREEZE RD For Sale

      $32,000,000

      SW SUNNYBREEZE RD, ARCADIA, FL 34269

    • 4135 KINGS HWY Pending

      $6,850,000

      4135 KINGS HWY, PUNTA GORDA, FL 33980

    • 5566 RIVER BAY DR For Sale

      $2,650,000

      5566 RIVER BAY DR, PUNTA GORDA, FL 33950

      • 3 Beds
      • 3 Baths
      • 3,279 Sq.Ft.
    • 6300 FLORIDA ST For Sale

      $2,500,000

      Unnamed US17 I75 EXIT 164 ST, PUNTA GORDA, FL 33950

    • 4531 GRASSY POINT BLVD Pending

      $1,995,000

      4531 GRASSY POINT BLVD, PORT CHARLOTTE, FL 33952

      • 4 Beds
      • 5 Baths
      • 4,752 Sq.Ft.
    • 39321 WASHINGTON LOOP RD For Sale

      $1,950,000

      39321 WASHINGTON LOOP RD, PUNTA GORDA, FL 33982

      • 5 Beds
      • 4 Baths
      • 5,463 Sq.Ft.
    • 6100 RIVERSIDE DR For Sale

      $1,840,000

      6100 RIVERSIDE DR, PUNTA GORDA, FL 33982

      • 3 Beds
      • 3 Baths
      • 2,369 Sq.Ft.
    • 3790 PEACE RIVER DR For Sale

      $1,750,000

      3790 PEACE RIVER DR, PUNTA GORDA, FL 33983

      • 4 Beds
      • 4 Baths
      • 3,712 Sq.Ft.
    • 1631 CASEY KEY DR For Sale

      $1,695,000

      1631 CASEY KEY DR, PUNTA GORDA, FL 33950

      • 4 Beds
      • 3 Baths
      • 2,606 Sq.Ft.
    • 3280 N ACCESS RD For Sale

      $1,500,000

      3278-3294 N ACCESS RD, ENGLEWOOD, FL 34224

    • 116 NORTHSHORE TER For Sale

      $1,415,000

      116 NORTHSHORE TER, PUNTA GORDA, FL 33980

      • 3 Beds
      • 3 Baths
      • 2,512 Sq.Ft.
    • 524 LA CARUNA CT For Sale

      $1,400,000

      524 LA CARUNA CT, PUNTA GORDA, FL 33950

      • 4 Beds
      • 4 Baths
      • 4,261 Sq.Ft.
    • 0997160030 BOLANDER TER For Sale

      $1,390,000

      0997160030 BOLANDER TER, NORTH PORT, FL 34287

      • 4 Beds
      • 3 Baths
      • 2,609 Sq.Ft.
    • 112 NORTHSHORE TER For Sale

      $1,365,000

      112 NORTHSHORE TER, PUNTA GORDA, FL 33980

      • 3 Beds
      • 3 Baths
      • 2,512 Sq.Ft.
    • 3564 PEACE RIVER DR For Sale

      $1,339,000

      3564 PEACE RIVER DR, PUNTA GORDA, FL 33983

      • 3 Beds
      • 3 Baths
      • 2,437 Sq.Ft.
    • 14150 OSTROM AVE For Sale

      $1,290,000

      14150 OSTROM AVE, PORT CHARLOTTE, FL 33981

      • 4 Beds
      • 3 Baths
      • 2,609 Sq.Ft.
    • 2385 PAPPAS TER For Sale

      $1,290,000

      2385 PAPPAS TER, PORT CHARLOTTE, FL 33981

      • 4 Beds
      • 3 Baths
      • 2,609 Sq.Ft.
    • 4013 BASTIA CT For Sale

      $1,229,900

      4013 BASTIA CT, PUNTA GORDA, FL 33950

      • 4 Beds
      • 3 Baths
      • 3,005 Sq.Ft.
    • 1434 CASEY KEY DR Pending

      $1,215,000

      1434 CASEY KEY DR, PUNTA GORDA, FL 33950

      • 4 Beds
      • 4 Baths
      • 2,513 Sq.Ft.
    • 2839 CORAL WAY For Sale

      $1,199,000

      2839 CORAL WAY, PUNTA GORDA, FL 33950

      • 3 Beds
      • 4 Baths
      • 4,639 Sq.Ft.
    • 12299 ALBRECHT TER For Sale

      $1,190,000

      12299 ALBRECHT TER, PORT CHARLOTTE, FL 33981

      • 4 Beds
      • 3 Baths
      • 2,609 Sq.Ft.
    • 630 CORONADO DR For Sale

      $1,149,900

      630 CORONADO DR, PUNTA GORDA, FL 33950

      • 3 Beds
      • 2 Baths
      • 2,159 Sq.Ft.
    • 360 CAPRI ISLES CT For Sale

      $1,099,000

      360 CAPRI ISLES CT, PUNTA GORDA, FL 33950

      • 3 Beds
      • 3 Baths
      • 2,528 Sq.Ft.
    • 5348 PALANGOS DR Pending

      $949,000

      5348 PALANGOS DR, PUNTA GORDA, FL 33982

      • 4 Beds
      • 3 Baths
      • 2,890 Sq.Ft.
    • 3360 BAL HARBOR BLVD For Sale

      $899,000

      3360 BAL HARBOR BLVD, PUNTA GORDA, FL 33950

      • 4 Beds
      • 2 Baths
      • 2,215 Sq.Ft.
    • 9610 SW YACHT DR For Sale

      $875,000

      9610 SW YACHT DR, ARCADIA, FL 34269

      • 5 Beds
      • 4 Baths
      • 3,684 Sq.Ft.
    • 197 TROPICANA DR #1522 For Sale

      $799,900

      197 TROPICANA DR #1522, PUNTA GORDA, FL 33950

      • 3 Beds
      • 3 Baths
      • 2,495 Sq.Ft.
    • 138 COLONIAL ST SW For Sale

      $795,000

      138 COLONIAL ST SW, PORT CHARLOTTE, FL 33952

      • 3 Beds
      • 3 Baths
      • 2,549 Sq.Ft.
    • 258 SHREVE ST For Sale

      $714,900

      258 SHREVE ST, PUNTA GORDA, FL 33950

      • 3 Beds
      • 2 Baths
      • 1,855 Sq.Ft.
    • 28401 COCO PALM DR For Sale

      $699,000

      28401 COCO PALM DR, PUNTA GORDA, FL 33982

      • 3 Beds
      • 3 Baths
      • 3,164 Sq.Ft.
    • 2358 EL CERITO CT For Sale

      $674,900

      2358 EL CERITO CT, PUNTA GORDA, FL 33950

      • 3 Beds
      • 3 Baths
      • 1,904 Sq.Ft.
    • 345 BELAIRE CT For Sale

      $664,900

      345 BELAIRE CT, PUNTA GORDA, FL 33950

      • 3 Beds
      • 2 Baths
      • 2,078 Sq.Ft.
    • 1241 ROYAL TERN DR Pending

      $599,000

      1241 ROYAL TERN DR, PUNTA GORDA, FL 33950

      • 3 Beds
      • 2 Baths
      • 1,849 Sq.Ft.
    • 93 VIVANTE BLVD #9336 For Sale

      $599,000

      93 VIVANTE BLVD #9336, PUNTA GORDA, FL 33950

      • 3 Beds
      • 3 Baths
      • 2,398 Sq.Ft.
    • 1111 LA SALINA CT For Sale

      $575,000

      1111 LA SALINA CT, PUNTA GORDA, FL 33950

      • 3 Beds
      • 2 Baths
      • 1,939 Sq.Ft.
    • 621 TRABUE AVE For Sale

      $549,900

      621 TRABUE AVE, PUNTA GORDA, FL 33950

      • 4 Beds
      • 2 Baths
      • 2,234 Sq.Ft.
    • 8313 SW SAND CRANE CIR For Sale

      $520,000

      8313 SW SAND CRANE - LOT 15 CIR, ARCADIA, FL 34269

      • 1 Bed
      • 1 Bath
      • 1,000 Sq.Ft.
    • 123 GILL ST Pending

      $499,000

      123 GILL ST, PUNTA GORDA, FL 33950

      • 4 Beds
      • 3 Baths
      • 1,960 Sq.Ft.
    • 8664 SW SAND CRANE CIR For Sale

      $479,000

      8664 SW SAND CRANE - LOT 46 CIR, ARCADIA, FL 34269

      • 1 Bed
      • 1 Bath
      • 865 Sq.Ft.
    • 9582 ARSIPE CIR For Sale

      $475,000

      9582 ARSIPE CIR, PORT CHARLOTTE, FL 33981

      • 3 Beds
      • 3 Baths
      • 1,938 Sq.Ft.
    • 23439 FREEPORT AVE For Sale

      $449,900

      23439 FREEPORT AVE, PORT CHARLOTTE, FL 33954

      • 3 Beds
      • 2 Baths
      • 2,116 Sq.Ft.
    • 8234 SW SAND CRANE CIR For Sale

      $449,000

      8234 SW SAND CRANE LOT 93 CIR, ARCADIA, FL 34269

      • 1 Bed
      • 1 Bath
      • 780 Sq.Ft.
    • 8574 SW SAND CRANE CIR For Sale

      $449,000

      8574 SW SAND CRANE - LOT 53 CIR, ARCADIA, FL 34269

      • 1 Bed
      • 1 Bath
      • 750 Sq.Ft.
    • 8306 SW SAND CRANE LOT 87 CIR For Sale

      $437,900

      8306 SW SAND CRANE LOT 87 CIR, ARCADIA, FL 34269

      • 1 Bed
      • 1 Bath
      • 1,000 Sq.Ft.
    • 3308 PURPLE MARTIN DR #122 Pending

      $424,900

      3308 PURPLE MARTIN DR #122, PUNTA GORDA, FL 33950

      • 3 Beds
      • 2 Baths
      • 1,882 Sq.Ft.
    • 7676 MIKASA DR For Sale

      $395,000

      7676 MIKASA DR, PUNTA GORDA, FL 33950

      • 4 Beds
      • 2 Baths
      • 1,846 Sq.Ft.
    • 7012 WATERFORD PKWY For Sale

      $380,000

      7012 WATERFORD PKWY, PUNTA GORDA, FL 33950

      • 4 Beds
      • 2 Baths
      • 1,846 Sq.Ft.
    • 1910 NW 27TH PL For Sale

      $339,000

      1910 NW 27TH PL, CAPE CORAL, FL 33993

      • 3 Beds
      • 2 Baths
      • 1,400 Sq.Ft.
    • 3216 PURPLE MARTIN DR #122 For Sale

      $325,000

      3216 PURPLE MARTIN DR #122, PUNTA GORDA, FL 33950

      • 2 Beds
      • 2 Baths
      • 1,460 Sq.Ft.
    • 258 SHADOW ST NW For Sale

      $310,000

      258 SHADOW ST NW, PORT CHARLOTTE, FL 33952

      • 3 Beds
      • 2 Baths
      • 1,487 Sq.Ft.
    View All Properties

    Follow Us On Instagram