Search

Leave a Message

By providing your contact information to Carla Nix, your personal information will be processed in accordance with Carla Nix's Privacy Policy. By checking the box(es) below, you consent to receive communications regarding your real estate inquiries and related marketing and promotional updates in the manner selected by you. For SMS text messages, message frequency varies. Message and data rates may apply. You may opt out of receiving further communications from Carla Nix at any time. To opt out of receiving SMS text messages, reply STOP to unsubscribe.

Thank you for your message. We will be in touch with you shortly.

Explore Our Properties

Property Description

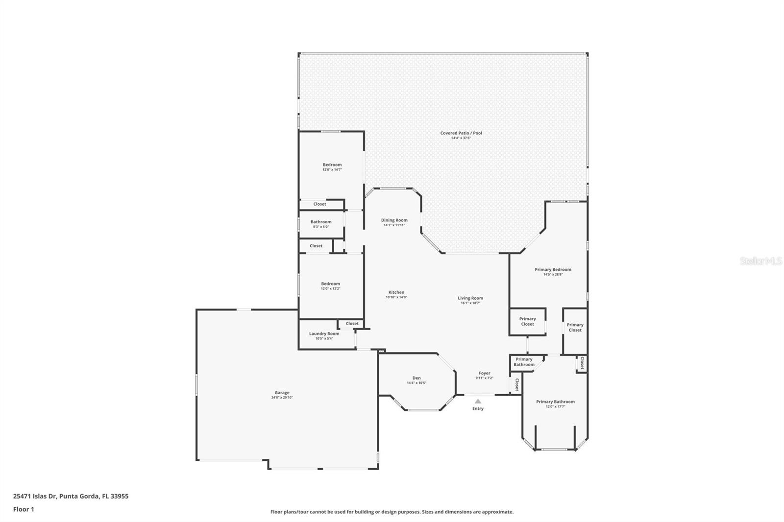
Nestled behind mature, professionally designed tropical landscaping on a DOUBLE LOT with low HOA and a new roof, full storm protection, and a WHOLE HOME GENERATOR, this extraordinary custom home by DM Dean Home Builders delivers a level of privacy, space, and turnkey luxury that is increasingly rare in Southwest Florida. Set on a peaceful cul-de-sac with no through traffic, the property spans over half an acre, with an additional adjacent lot available, offering a unique opportunity to expand into a private estate. The setting feels like a secluded oasis, with stunning sunrises, serene poolside evenings, and beautifully layered landscaping that creates natural privacy throughout. Relax on the covered front porch with beautiful seating area and fountain to enjoy or enter the double door entry to be wowed! Inside, the home is meticulously maintained and thoughtfully upgraded, featuring vaulted ceilings, modern systems, & a spacious four-car garage. Additionally, it offers a split floor plan with 3 bedrooms plus a den, and 2 bathrooms. To the right of the main entry, find the primary suite with great storage space, a beautifully appointed bedroom with direct access to the pool area, and an en suite bathroom with large Roman shower and dual vanities with private toilet room. At the heart of the home, a large living room with a wall of pocket sliding glass doors is open to the gourmet kitchen with granite counter tops and a large breakfast bar and built in secretary area with additional cabinetry. The den/office is also nearby for convenience and flex space. Off the kitchen find a spacious laundry room with extra storage and connectivity to the dream garage with room for 4 cars plus a workshop! Also off the kitchen is a lovely breakfast nook overlooking the pool. Tucked away behind a custom barn door, find 2 luxurious guest bedrooms with a shared guest bathroom with tile shower and upgraded finishes. The outdoor living spaces are equally impressive, with a resort-style pool, expansive screened lanai, fenced pet area, and lush grounds designed for entertaining, relaxing, and everyday enjoyment. Sold fully furnished and move-in ready, this is more than a home, it's a private retreat offering peace of mind, comfort, and a truly elevated Florida lifestyle. Be sure to ask for all attachments including the features sheet which highlights many additional upgrades including a NEW ROOF, WHOLE HOME GENERATOR, FULL STORM PROTECTION, NEW FLOORING & MORE! Recent appraisal well over list price! Schedule your showing today!

Overview

Property Status
For Sale
Lot Size
0.49 Acres
MLS ID
C7520659
Property Type
Residential
Year Built
2006

Features & Amenities

Total Area
4,722 Sq.Ft.
Neighborhood
Punta Gorda
Architecture Styles
Contemporary
Stories
1
Garage Spaces
4.0
Water Source
Public, Well
Utilites
BB/HS Internet Available, Cable Available, Electricity Connected, Propane, Sewer Connected, Sprinkler Well, Water Connected
Pool
Gunite, In Ground, Lighting, Screen Enclosure
Roof
Shingle
Lot Features
Landscaped, Level, Oversized Lot, Paved
Parking
Driveway, Off Street, Oversized
Heat Type
Central, Electric
Air Conditioning
Central Air
Laundry Room
Inside, Laundry Room
Appliances
Dishwasher, Dryer, Microwave, Range, Refrigerator, Washer
Other Interior Features
Built-in Features, Ceiling Fans(s), Crown Molding, Eat-in Kitchen, High Ceilings, Living Room/Dining Room Combo, Primary Bedroom Main Floor, Solid Wood Cabinets, Split Bedroom, Stone Counters, Thermostat, Vaulted Ceiling(s), Walk-In Closet(s), Window Treatments
Sewer
Public Sewer
Substructure
Slab
HOA Amenities
Park, Playground
Security Features
Security System, Smoke Detector(s)
Other Exterior Features
Dog Run, Lighting
Sales Price
$699,000
Real Estate Tax
$4,859/yr
HOA
$42/mo
Zoning
RSF3.5

Downloads

25471 ISLAS DR

Schedule a Tour

We would love to help you see this beautiful home! As a full-service brokerage, we can help you tour. Please submit an offer, and answer questions about the buying process.

Thank you

for your interest in 25471 ISLAS DR, PUNTA GORDA, FL 33955

25471 ISLAS DR
Navigate
Punta Gorda

Explore Punta Gorda

read more

Mortgage Calculator

Estimate your monthly mortgage payment, including the principal and interest, property taxes, and HOA. Adjust the values to generate a more accurate rate.
$0,000 Your Payment 20 15 65
$0,000 Your Payment

I'm Interested In

25471 ISLAS DR

or
  • CallCarla Nix

    License #274506448

    (941) 225-4663
  • Browse Other

    Featured Properties

    • 4135 KINGS HWY For Sale

      $6,850,000

      4135 KINGS HWY, PUNTA GORDA, FL 33980

    • 5566 RIVER BAY DR For Sale

      $2,950,000

      5566 RIVER BAY DR, PUNTA GORDA, FL 33950

      • 3 Beds
      • 3 Baths
      • 3,279 Sq.Ft.
    • 6300 FLORIDA ST For Sale

      $2,500,000

      Unnamed US17 I75 EXIT 164 ST, PUNTA GORDA, FL 33950

    • 50 BUCCANEER BND For Sale

      $2,095,000

      50 BUCCANEER BND, PLACIDA, FL 33946

      • 5 Beds
      • 4 Baths
      • 4,642 Sq.Ft.
    • 4531 GRASSY POINT BLVD For Sale

      $1,999,900

      4531 GRASSY POINT BLVD, PORT CHARLOTTE, FL 33952

      • 4 Beds
      • 5 Baths
      • 4,752 Sq.Ft.
    • 39321 WASHINGTON LOOP RD For Sale

      $1,950,000

      39321 WASHINGTON LOOP RD, PUNTA GORDA, FL 33982

      • 5 Beds
      • 4 Baths
      • 5,463 Sq.Ft.
    • 6100 RIVERSIDE DR For Sale

      $1,940,000

      6100 RIVERSIDE DR, PUNTA GORDA, FL 33982

      • 3 Beds
      • 3 Baths
      • 2,369 Sq.Ft.
    • 2835 CORAL WAY For Sale

      $1,775,000

      2835 CORAL WAY, PUNTA GORDA, FL 33950

      • 3 Beds
      • 4 Baths
      • 2,741 Sq.Ft.
    • 3790 PEACE RIVER DR For Sale

      $1,750,000

      3790 PEACE RIVER DR, PUNTA GORDA, FL 33983

      • 4 Beds
      • 4 Baths
      • 3,712 Sq.Ft.
    • 1631 CASEY KEY DR For Sale

      $1,749,000

      1631 CASEY KEY DR, PUNTA GORDA, FL 33950

      • 4 Beds
      • 3 Baths
      • 2,606 Sq.Ft.
    • 3280 N ACCESS RD For Sale

      $1,500,000

      3278-3294 N ACCESS RD, ENGLEWOOD, FL 34224

    • 2410 W MARION AVE Pending

      $1,499,000

      2410 W MARION AVE, PUNTA GORDA, FL 33950

      • 3 Beds
      • 3 Baths
      • 2,504 Sq.Ft.
    • 116 NORTHSHORE TER For Sale

      $1,465,000

      116 NORTHSHORE TER, PUNTA GORDA, FL 33980

      • 3 Beds
      • 3 Baths
      • 2,512 Sq.Ft.
    • 112 NORTHSHORE TER For Sale

      $1,415,000

      112 NORTHSHORE TER, PUNTA GORDA, FL 33980

      • 3 Beds
      • 3 Baths
      • 2,512 Sq.Ft.
    • 3655 BAL HARBOR BLVD #111-113 For Sale

      $1,395,000

      3655 BAL HARBOR BLVD #111-113, PUNTA GORDA, FL 33950

      • 9 Beds
      • 9 Baths
      • 5,691 Sq.Ft.
    • 3564 PEACE RIVER DR For Sale

      $1,389,000

      3564 PEACE RIVER DR, PUNTA GORDA, FL 33983

      • 3 Beds
      • 3 Baths
      • 2,437 Sq.Ft.
    • 17389 OHARA DR For Sale

      $1,299,000

      17389 OHARA DR, PORT CHARLOTTE, FL 33948

      • 3 Beds
      • 3 Baths
      • 2,643 Sq.Ft.
    • 1434 CASEY KEY DR For Sale

      $1,225,000

      1434 CASEY KEY DR, PUNTA GORDA, FL 33950

      • 4 Beds
      • 4 Baths
      • 2,513 Sq.Ft.
    • 2839 CORAL WAY For Sale

      $1,199,000

      2839 CORAL WAY, PUNTA GORDA, FL 33950

      • 3 Beds
      • 4 Baths
      • 4,639 Sq.Ft.
    • 5179 COLLINGSWOOD BLVD Pending

      $1,199,000

      5179 COLLINGSWOOD BLVD, PORT CHARLOTTE, FL 33948

      • 3 Beds
      • 3 Baths
      • 2,474 Sq.Ft.
    • 258 TAIT TER SE Pending

      $1,185,000

      258 TAIT TER SE, PORT CHARLOTTE, FL 33952

      • 4 Beds
      • 5 Baths
      • 3,340 Sq.Ft.
    • 630 CORONADO DR For Sale

      $1,149,900

      630 CORONADO DR, PUNTA GORDA, FL 33950

      • 3 Beds
      • 2 Baths
      • 2,159 Sq.Ft.
    • 3736 BAL HARBOR BLVD Pending

      $1,075,000

      3736 BAL HARBOR BLVD, PUNTA GORDA, FL 33950

      • 3 Beds
      • 3 Baths
      • 2,419 Sq.Ft.
    • 12387 MINOT AVE For Sale

      $999,900

      12387 MINOT AVE, PORT CHARLOTTE, FL 33981

      • 4 Beds
      • 3 Baths
      • 2,609 Sq.Ft.
    • 5348 PALANGOS DR For Sale

      $999,000

      5348 PALANGOS DR, PUNTA GORDA, FL 33982

      • 4 Beds
      • 3 Baths
      • 2,890 Sq.Ft.
    • 9610 SW YACHT DR For Sale

      $875,000

      9610 SW YACHT DR, ARCADIA, FL 34269

      • 5 Beds
      • 4 Baths
      • 3,684 Sq.Ft.
    • 197 TROPICANA DR #1522 For Sale

      $814,900

      197 TROPICANA DR #1522, PUNTA GORDA, FL 33950

      • 3 Beds
      • 3 Baths
      • 2,495 Sq.Ft.
    • 2181 PALM TREE DR Pending

      $785,000

      2181 PALM TREE DR, PUNTA GORDA, FL 33950

    • 258 SHREVE ST For Sale

      $749,000

      258 SHREVE ST, PUNTA GORDA, FL 33950

      • 3 Beds
      • 2 Baths
      • 1,855 Sq.Ft.
    • 25471 ISLAS DR For Sale

      $699,000

      25471 ISLAS DR, PUNTA GORDA, FL 33955

      • 3 Beds
      • 2 Baths
      • 2,222 Sq.Ft.
    • 345 BELAIRE CT For Sale

      $664,900

      345 BELAIRE CT, PUNTA GORDA, FL 33950

      • 3 Beds
      • 2 Baths
      • 2,078 Sq.Ft.
    • 621 TRABUE AVE For Sale

      $599,900

      621 TRABUE AVE, PUNTA GORDA, FL 33950

      • 4 Beds
      • 2 Baths
      • 2,234 Sq.Ft.
    • 93 VIVANTE BLVD #9336 For Sale

      $599,000

      93 VIVANTE BLVD #9336, PUNTA GORDA, FL 33950

      • 3 Beds
      • 3 Baths
      • 2,398 Sq.Ft.
    • 325 MADRID BLVD Pending

      $597,500

      325 MADRID BLVD, PUNTA GORDA, FL 33950

      • 3 Beds
      • 3 Baths
      • 2,236 Sq.Ft.
    • 123 GILL ST For Sale

      $549,000

      123 GILL ST, PUNTA GORDA, FL 33950

      • 4 Beds
      • 3 Baths
      • 1,960 Sq.Ft.
    • 1615 VIA BIANCA For Sale

      $529,000

      1615 VIA BIANCA, PUNTA GORDA, FL 33950

      • 3 Beds
      • 3 Baths
      • 1,994 Sq.Ft.
    • 8275 SW SAND CRANE CIR For Sale

      $525,000

      8275 SW SAND CRANE - LOT 13 CIR, ARCADIA, FL 34269

      • 1 Bed
      • 1 Bath
      • 844 Sq.Ft.
    • 2518 MAURITANIA RD For Sale

      $499,000

      2518 MAURITANIA RD, PUNTA GORDA, FL 33983

      • 4 Beds
      • 3 Baths
      • 2,380 Sq.Ft.
    • 8313 SW SAND CRANE CIR For Sale

      $485,000

      8313 SW SAND CRANE - LOT 15 CIR, ARCADIA, FL 34269

      • 1 Bed
      • 1 Bath
      • 1,000 Sq.Ft.
    • 8664 SW SAND CRANE CIR For Sale

      $479,000

      8664 SW SAND CRANE - LOT 46 CIR, ARCADIA, FL 34269

      • 1 Bed
      • 1 Bath
      • 865 Sq.Ft.
    • 8234 SW SAND CRANE CIR For Sale

      $449,000

      8234 SW SAND CRANE LOT 93 CIR, ARCADIA, FL 34269

      • 1 Bed
      • 1 Bath
      • 780 Sq.Ft.
    • 8574 SW SAND CRANE CIR For Sale

      $449,000

      8574 SW SAND CRANE - LOT 53 CIR, ARCADIA, FL 34269

      • 1 Bed
      • 1 Bath
      • 750 Sq.Ft.
    • 3308 PURPLE MARTIN DR #122 For Sale

      $439,900

      3308 PURPLE MARTIN DR #122, PUNTA GORDA, FL 33950

      • 3 Beds
      • 2 Baths
      • 1,882 Sq.Ft.
    • 7012 WATERFORD PKWY For Sale

      $380,000

      7012 WATERFORD PKWY, PUNTA GORDA, FL 33950

      • 4 Beds
      • 2 Baths
      • 1,846 Sq.Ft.
    • 2333 BENGAL CT For Sale

      $379,000

      2333 BENGAL CT, PUNTA GORDA, FL 33983

      • 3 Beds
      • 2 Baths
      • 1,784 Sq.Ft.
    • 4074 FAIRWAY DR Pending

      $349,000

      4074 FAIRWAY DR, NORTH PORT, FL 34287

      • 3 Beds
      • 2 Baths
      • 1,487 Sq.Ft.
    • 1910 NW 27TH PL For Sale

      $339,000

      1910 NW 27TH PL, CAPE CORAL, FL 33993

      • 3 Beds
      • 2 Baths
      • 1,400 Sq.Ft.
    • 5011 ALMAR DR For Sale

      $327,777

      5011 ALMAR DR, PUNTA GORDA, FL 33950

    • 3216 PURPLE MARTIN DR #122 For Sale

      $325,000

      3216 PURPLE MARTIN DR #122, PUNTA GORDA, FL 33950

      • 2 Beds
      • 2 Baths
      • 1,460 Sq.Ft.
    • 258 SHADOW ST NW For Sale

      $310,000

      258 SHADOW ST NW, PORT CHARLOTTE, FL 33952

      • 3 Beds
      • 2 Baths
      • 1,487 Sq.Ft.
    View All Properties

    Follow Us On Instagram