Search

Leave a Message

By providing your contact information to Carla Nix, your personal information will be processed in accordance with Carla Nix's Privacy Policy. By checking the box(es) below, you consent to receive communications regarding your real estate inquiries and related marketing and promotional updates in the manner selected by you. For SMS text messages, message frequency varies. Message and data rates may apply. You may opt out of receiving further communications from Carla Nix at any time. To opt out of receiving SMS text messages, reply STOP to unsubscribe.

Thank you for your message. We will be in touch with you shortly.

Explore Our Properties

Property Description

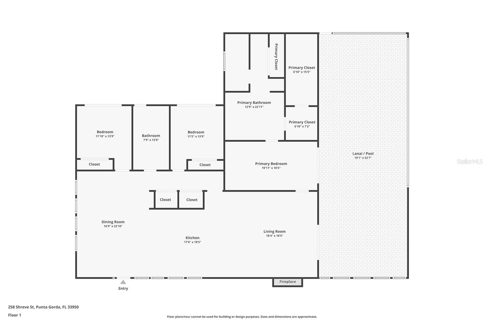
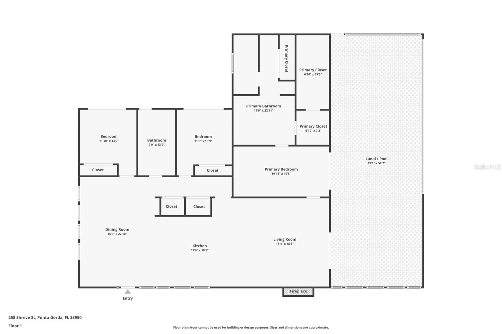
Buyer financing fell through- HOUSE APPRAISED/Passed Inspections. Do not miss out on your chance to buy! Located in the heart of the Punta Gorda Historic District, this deceptively spacious 3-bedroom, 2-bathroom Mid-Century Modern residence has been fully remodeled and expanded, offering a rare blend of architectural character and modern functionality. Originally built in 1959, with full rebuild down to the studs in 2014, the home has been thoughtfully updated inside and out in 2024, including a significant primary suite addition, while preserving the clean lines and open-concept design that define Mid-Century Modern style.

Despite its understated exterior, the home opens to a surprisingly expansive interior with a highly functional layout that lives far larger than expected. Situated on an oversized double lot (approximately 0.35 acres), the property provides exceptional outdoor space--an uncommon feature in downtown Punta Gorda. The expansive backyard features lush landscaping, open green space, and a resort-style pool with a dedicated seating and outdoor cooking area, ideal for entertaining and everyday enjoyment.

Inside, the open living and dining areas flow seamlessly to the lanai and pool through large windows and doors that bring in abundant natural light. Luxury vinyl plank flooring runs throughout the home, offering durability and low maintenance. The modern kitchen features stainless steel appliances, generous cabinetry, and a large island with additional seating, opening directly to a spacious dining area designed to accommodate gatherings with ease.

The primary suite serves as a private retreat with a large walk-in shower, dual-sink vanity, separate makeup area, laundry room, and a custom walk-in closet with built-in cabinetry. Two additional bedrooms provide flexibility for guests, home office space, or additional living needs. Ample storage is available in the hallway behind kitchen and in the carport area, adding practical functionality rarely found in homes of this era.

The property has been featured in Harbor Magazine and is listed in the Local Register of Historic Places. Exterior modifications may be subject to local historic preservation guidelines, helping maintain the architectural integrity of the district.

Conveniently located near downtown Punta Gorda's shopping, dining, parks, and waterfront amenities, this home presents a unique opportunity to own a fully updated historic residence that offers modern finishes, generous indoor and outdoor living space, and timeless Mid-Century design in one of Southwest Florida's most desirable locations.

Overview

Property Status
For Sale
Lot Size
0.35 Acres
MLS ID
C7521098
Property Type
Residential
Year Built
1959

Features & Amenities

Total Area
2,765 Sq.Ft.
Neighborhood
Punta Gorda
Architecture Styles
Mid-Century Modern
Stories
1
Water Source
Public
Utilites
Cable Available, Electricity Connected, Sewer Connected, Water Connected
Pool
Gunite
Roof
Membrane
Lot Features
City Limits, Landscaped
Parking
Covered, Driveway, Off Street
Heat Type
Central
Air Conditioning
Central Air
Laundry Room
Inside
Fireplace
Living Room
Appliances
Built-In Oven, Convection Oven, Cooktop, Dishwasher, Disposal, Electric Water Heater, Microwave, Refrigerator, Wine Refrigerator
Other Interior Features
Cathedral Ceiling(s), Ceiling Fans(s), Eat-in Kitchen, High Ceilings, Kitchen/Family Room Combo, Open Floorplan, Stone Counters, Walk-In Closet(s)
Sewer
Public Sewer
Substructure
Slab
Other Exterior Features
Hurricane Shutters, Lighting, Outdoor Grill, Sliding Doors, Storage
Elementary School
Sallie Jones Elementary
Middle School
Punta Gorda Middle
High School
Charlotte High
Sales Price
$714,900
Real Estate Tax
$5,575/yr
Zoning
NR-10

Downloads

258 SHREVE ST

Schedule a Tour

We would love to help you see this beautiful home! As a full-service brokerage, we can help you tour. Please submit an offer, and answer questions about the buying process.

Thank you

for your interest in 258 SHREVE ST, PUNTA GORDA, FL 33950

258 SHREVE ST
Navigate
Punta Gorda

Explore Punta Gorda

read more

Mortgage Calculator

Estimate your monthly mortgage payment, including the principal and interest, property taxes, and HOA. Adjust the values to generate a more accurate rate.
$0,000 Your Payment 20 15 65
$0,000 Your Payment

I'm Interested In

258 SHREVE ST

or
  • CallCarla Nix

    License #274506448

    (941) 225-4663
  • Browse Other

    Featured Properties

    • SW SUNNYBREEZE RD For Sale

      $32,000,000

      SW SUNNYBREEZE RD, ARCADIA, FL 34269

    • 4135 KINGS HWY Pending

      $6,850,000

      4135 KINGS HWY, PUNTA GORDA, FL 33980

    • 5566 RIVER BAY DR For Sale

      $2,650,000

      5566 RIVER BAY DR, PUNTA GORDA, FL 33950

      • 3 Beds
      • 3 Baths
      • 3,279 Sq.Ft.
    • 6300 FLORIDA ST For Sale

      $2,500,000

      Unnamed US17 I75 EXIT 164 ST, PUNTA GORDA, FL 33950

    • 4531 GRASSY POINT BLVD Pending

      $1,995,000

      4531 GRASSY POINT BLVD, PORT CHARLOTTE, FL 33952

      • 4 Beds
      • 5 Baths
      • 4,752 Sq.Ft.
    • 39321 WASHINGTON LOOP RD For Sale

      $1,950,000

      39321 WASHINGTON LOOP RD, PUNTA GORDA, FL 33982

      • 5 Beds
      • 4 Baths
      • 5,463 Sq.Ft.
    • 6100 RIVERSIDE DR For Sale

      $1,840,000

      6100 RIVERSIDE DR, PUNTA GORDA, FL 33982

      • 3 Beds
      • 3 Baths
      • 2,369 Sq.Ft.
    • 3790 PEACE RIVER DR For Sale

      $1,750,000

      3790 PEACE RIVER DR, PUNTA GORDA, FL 33983

      • 4 Beds
      • 4 Baths
      • 3,712 Sq.Ft.
    • 1631 CASEY KEY DR For Sale

      $1,695,000

      1631 CASEY KEY DR, PUNTA GORDA, FL 33950

      • 4 Beds
      • 3 Baths
      • 2,606 Sq.Ft.
    • 3280 N ACCESS RD For Sale

      $1,500,000

      3278-3294 N ACCESS RD, ENGLEWOOD, FL 34224

    • 116 NORTHSHORE TER For Sale

      $1,415,000

      116 NORTHSHORE TER, PUNTA GORDA, FL 33980

      • 3 Beds
      • 3 Baths
      • 2,512 Sq.Ft.
    • 524 LA CARUNA CT For Sale

      $1,400,000

      524 LA CARUNA CT, PUNTA GORDA, FL 33950

      • 4 Beds
      • 4 Baths
      • 4,261 Sq.Ft.
    • 0997160030 BOLANDER TER For Sale

      $1,390,000

      0997160030 BOLANDER TER, NORTH PORT, FL 34287

      • 4 Beds
      • 3 Baths
      • 2,609 Sq.Ft.
    • 112 NORTHSHORE TER For Sale

      $1,365,000

      112 NORTHSHORE TER, PUNTA GORDA, FL 33980

      • 3 Beds
      • 3 Baths
      • 2,512 Sq.Ft.
    • 3564 PEACE RIVER DR For Sale

      $1,339,000

      3564 PEACE RIVER DR, PUNTA GORDA, FL 33983

      • 3 Beds
      • 3 Baths
      • 2,437 Sq.Ft.
    • 14150 OSTROM AVE For Sale

      $1,290,000

      14150 OSTROM AVE, PORT CHARLOTTE, FL 33981

      • 4 Beds
      • 3 Baths
      • 2,609 Sq.Ft.
    • 2385 PAPPAS TER For Sale

      $1,290,000

      2385 PAPPAS TER, PORT CHARLOTTE, FL 33981

      • 4 Beds
      • 3 Baths
      • 2,609 Sq.Ft.
    • 4013 BASTIA CT For Sale

      $1,229,900

      4013 BASTIA CT, PUNTA GORDA, FL 33950

      • 4 Beds
      • 3 Baths
      • 3,005 Sq.Ft.
    • 1434 CASEY KEY DR Pending

      $1,215,000

      1434 CASEY KEY DR, PUNTA GORDA, FL 33950

      • 4 Beds
      • 4 Baths
      • 2,513 Sq.Ft.
    • 2839 CORAL WAY Pending

      $1,199,000

      2839 CORAL WAY, PUNTA GORDA, FL 33950

      • 3 Beds
      • 4 Baths
      • 4,639 Sq.Ft.
    • 12299 ALBRECHT TER For Sale

      $1,190,000

      12299 ALBRECHT TER, PORT CHARLOTTE, FL 33981

      • 4 Beds
      • 3 Baths
      • 2,609 Sq.Ft.
    • 630 CORONADO DR For Sale

      $1,149,900

      630 CORONADO DR, PUNTA GORDA, FL 33950

      • 3 Beds
      • 2 Baths
      • 2,159 Sq.Ft.
    • 360 CAPRI ISLES CT For Sale

      $1,099,000

      360 CAPRI ISLES CT, PUNTA GORDA, FL 33950

      • 3 Beds
      • 3 Baths
      • 2,528 Sq.Ft.
    • 5348 PALANGOS DR Pending

      $949,000

      5348 PALANGOS DR, PUNTA GORDA, FL 33982

      • 4 Beds
      • 3 Baths
      • 2,890 Sq.Ft.
    • 3360 BAL HARBOR BLVD For Sale

      $899,000

      3360 BAL HARBOR BLVD, PUNTA GORDA, FL 33950

      • 4 Beds
      • 2 Baths
      • 2,215 Sq.Ft.
    • 9610 SW YACHT DR For Sale

      $875,000

      9610 SW YACHT DR, ARCADIA, FL 34269

      • 5 Beds
      • 4 Baths
      • 3,684 Sq.Ft.
    • 197 TROPICANA DR #1522 For Sale

      $799,900

      197 TROPICANA DR #1522, PUNTA GORDA, FL 33950

      • 3 Beds
      • 3 Baths
      • 2,495 Sq.Ft.
    • 138 COLONIAL ST SW For Sale

      $795,000

      138 COLONIAL ST SW, PORT CHARLOTTE, FL 33952

      • 3 Beds
      • 3 Baths
      • 2,549 Sq.Ft.
    • 258 SHREVE ST For Sale

      $714,900

      258 SHREVE ST, PUNTA GORDA, FL 33950

      • 3 Beds
      • 2 Baths
      • 1,855 Sq.Ft.
    • 28401 COCO PALM DR For Sale

      $699,000

      28401 COCO PALM DR, PUNTA GORDA, FL 33982

      • 3 Beds
      • 3 Baths
      • 3,164 Sq.Ft.
    • 2358 EL CERITO CT For Sale

      $674,900

      2358 EL CERITO CT, PUNTA GORDA, FL 33950

      • 3 Beds
      • 3 Baths
      • 1,904 Sq.Ft.
    • 345 BELAIRE CT For Sale

      $664,900

      345 BELAIRE CT, PUNTA GORDA, FL 33950

      • 3 Beds
      • 2 Baths
      • 2,078 Sq.Ft.
    • 1241 ROYAL TERN DR Pending

      $599,000

      1241 ROYAL TERN DR, PUNTA GORDA, FL 33950

      • 3 Beds
      • 2 Baths
      • 1,849 Sq.Ft.
    • 93 VIVANTE BLVD #9336 For Sale

      $599,000

      93 VIVANTE BLVD #9336, PUNTA GORDA, FL 33950

      • 3 Beds
      • 3 Baths
      • 2,398 Sq.Ft.
    • 1111 LA SALINA CT For Sale

      $575,000

      1111 LA SALINA CT, PUNTA GORDA, FL 33950

      • 3 Beds
      • 2 Baths
      • 1,939 Sq.Ft.
    • 621 TRABUE AVE For Sale

      $549,900

      621 TRABUE AVE, PUNTA GORDA, FL 33950

      • 4 Beds
      • 2 Baths
      • 2,234 Sq.Ft.
    • 8313 SW SAND CRANE CIR For Sale

      $520,000

      8313 SW SAND CRANE - LOT 15 CIR, ARCADIA, FL 34269

      • 1 Bed
      • 1 Bath
      • 1,000 Sq.Ft.
    • 123 GILL ST Pending

      $499,000

      123 GILL ST, PUNTA GORDA, FL 33950

      • 4 Beds
      • 3 Baths
      • 1,960 Sq.Ft.
    • 8664 SW SAND CRANE CIR For Sale

      $479,000

      8664 SW SAND CRANE - LOT 46 CIR, ARCADIA, FL 34269

      • 1 Bed
      • 1 Bath
      • 865 Sq.Ft.
    • 9582 ARSIPE CIR For Sale

      $475,000

      9582 ARSIPE CIR, PORT CHARLOTTE, FL 33981

      • 3 Beds
      • 3 Baths
      • 1,938 Sq.Ft.
    • 8234 SW SAND CRANE CIR For Sale

      $449,000

      8234 SW SAND CRANE LOT 93 CIR, ARCADIA, FL 34269

      • 1 Bed
      • 1 Bath
      • 780 Sq.Ft.
    • 8574 SW SAND CRANE CIR For Sale

      $449,000

      8574 SW SAND CRANE - LOT 53 CIR, ARCADIA, FL 34269

      • 1 Bed
      • 1 Bath
      • 750 Sq.Ft.
    • 23439 FREEPORT AVE For Sale

      $439,900

      23439 FREEPORT AVE, PORT CHARLOTTE, FL 33954

      • 3 Beds
      • 2 Baths
      • 2,116 Sq.Ft.
    • 8306 SW SAND CRANE LOT 87 CIR For Sale

      $437,900

      8306 SW SAND CRANE LOT 87 CIR, ARCADIA, FL 34269

      • 1 Bed
      • 1 Bath
      • 1,000 Sq.Ft.
    • 3308 PURPLE MARTIN DR #122 Pending

      $424,900

      3308 PURPLE MARTIN DR #122, PUNTA GORDA, FL 33950

      • 3 Beds
      • 2 Baths
      • 1,882 Sq.Ft.
    • 7676 MIKASA DR For Sale

      $395,000

      7676 MIKASA DR, PUNTA GORDA, FL 33950

      • 4 Beds
      • 2 Baths
      • 1,846 Sq.Ft.
    • 7012 WATERFORD PKWY For Sale

      $370,000

      7012 WATERFORD PKWY, PUNTA GORDA, FL 33950

      • 4 Beds
      • 2 Baths
      • 1,846 Sq.Ft.
    • 1910 NW 27TH PL For Sale

      $339,000

      1910 NW 27TH PL, CAPE CORAL, FL 33993

      • 3 Beds
      • 2 Baths
      • 1,400 Sq.Ft.
    • 3216 PURPLE MARTIN DR #122 For Sale

      $325,000

      3216 PURPLE MARTIN DR #122, PUNTA GORDA, FL 33950

      • 2 Beds
      • 2 Baths
      • 1,460 Sq.Ft.
    • 25188 MARION AVE #E212 For Sale

      $299,000

      25188 MARION AVE #E212, PUNTA GORDA, FL 33950

      • 3 Beds
      • 2 Baths
      • 2,191 Sq.Ft.
    View All Properties

    Follow Us On Instagram