Search

Leave a Message

By providing your contact information to Carla Nix, your personal information will be processed in accordance with Carla Nix's Privacy Policy. By checking the box(es) below, you consent to receive communications regarding your real estate inquiries and related marketing and promotional updates in the manner selected by you. For SMS text messages, message frequency varies. Message and data rates may apply. You may opt out of receiving further communications from Carla Nix at any time. To opt out of receiving SMS text messages, reply STOP to unsubscribe.

Thank you for your message. We will be in touch with you shortly.

Explore Our Properties

Property Description

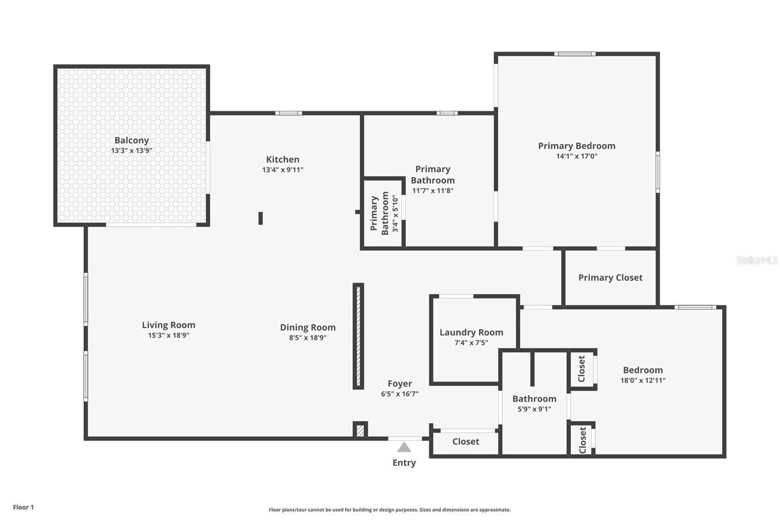
Gorgeous long water views will draw you into this luxurious and spacious 2 bedroom, 2 bathroom condo updated with new luxury vinyl plank flooring, a new kitchen with updated cabinets and quartz counters, a new A/C, new lighting and so much more! The resort style setting of Costa Bella Condos exhibits a beautiful lobby with secure entry to the building. COme up to the 2nd floor to find your new home with over 1800 square feet in this fantastic 2007 built condo that comes with all of the amenities you desire for Punta Gorda Isles living, including stunning waterfront, a deeded dock with a 10,000 lb boat lift, under building secure parking, a beautiful clubhouse, pool and spa area, and many more. Inside the unit you will find a spacious foyer diving the space to your large living room and great windows showcasing the rim canal views. From there, you will see the connected kitchen with quartz counter tops, a breakfast bar, and separate dining room. Enjoy from these spaces the beautiful lanai area positioned perfectly to see down 3 intersecting waterways. Both the master bedroom and bathroom are incredibly spacious, with spa-like quality, and the second bathroom and bedroom are perfect for accommodating any guests. The laundry room has additional storage in the condo, along with a fully air conditioned storage space in the garage area in front of your under building secure parking lot #7. Should you choose to invest, renting units here is a dream, with consistent demand due to the amenities available. Schedule your showing today.

Overview

Property Status
Sold
MLS ID
C7514870
Property Type
Condo
Year Built
2007

Features & Amenities

Total Area
1,810 Sq.Ft.
Neighborhood
Punta Gorda Isles
Architecture Styles
Florida
Water Frontage
Canal - Saltwater
Stories
4
Garage Spaces
1.0
Water Source
Public
Utilites
BB/HS Internet Available, Electricity Connected, Sewer Connected, Water Connected
Roof
Tile
Parking
Assigned, Covered, Ground Level, Off Street, Basement
Heat Type
Central, Electric
Air Conditioning
Central Air
Laundry Room
Inside
Appliances
Dishwasher, Disposal, Electric Water Heater, Microwave, Range, Refrigerator
Other Interior Features
Ceiling Fans(s), Eat-in Kitchen, Living Room/Dining Room Combo, Stone Counters, Thermostat, Walk-In Closet(s)
Sewer
Public Sewer
Substructure
Slab
Disability Features
Customized Wheelchair Accessible
HOA Amenities
Pool, Recreation Facilities
Other Exterior Features
Balcony, Lighting, Outdoor Grill, Outdoor Kitchen, Sliding Doors
Sales Price
$324,000
Real Estate Tax
$4,450/yr
HOA
$1,031/mo
Zoning
GM-15

Downloads

3340 WOOD THRUSH DR #323

Schedule a Tour

We would love to help you see this beautiful home! As a full-service brokerage, we can help you tour. Please submit an offer, and answer questions about the buying process.

Thank you

for your interest in 3340 WOOD THRUSH DR #323, PUNTA GORDA, FL 33950

3340 WOOD THRUSH DR #323
Navigate
Punta Gorda Isles

Explore Punta Gorda Isles

read more

I'm Interested In

3340 WOOD THRUSH DR #323

or
  • CallCarla Nix

    License #274506448

    (941) 225-4663
  • Browse Other

    Featured Properties

    • SW SUNNYBREEZE RD For Sale

      $32,000,000

      SW SUNNYBREEZE RD, ARCADIA, FL 34269

    • 4135 KINGS HWY For Sale

      $6,850,000

      4135 KINGS HWY, PUNTA GORDA, FL 33980

    • 5566 RIVER BAY DR For Sale

      $2,950,000

      5566 RIVER BAY DR, PUNTA GORDA, FL 33950

      • 3 Beds
      • 3 Baths
      • 3,279 Sq.Ft.
    • 6300 FLORIDA ST For Sale

      $2,500,000

      Unnamed US17 I75 EXIT 164 ST, PUNTA GORDA, FL 33950

    • 50 BUCCANEER BND Pending

      $2,095,000

      50 BUCCANEER BND, PLACIDA, FL 33946

      • 5 Beds
      • 4 Baths
      • 4,642 Sq.Ft.
    • 4531 GRASSY POINT BLVD For Sale

      $1,995,000

      4531 GRASSY POINT BLVD, PORT CHARLOTTE, FL 33952

      • 4 Beds
      • 5 Baths
      • 4,752 Sq.Ft.
    • 39321 WASHINGTON LOOP RD For Sale

      $1,950,000

      39321 WASHINGTON LOOP RD, PUNTA GORDA, FL 33982

      • 5 Beds
      • 4 Baths
      • 5,463 Sq.Ft.
    • 6100 RIVERSIDE DR For Sale

      $1,840,000

      6100 RIVERSIDE DR, PUNTA GORDA, FL 33982

      • 3 Beds
      • 3 Baths
      • 2,369 Sq.Ft.
    • 3790 PEACE RIVER DR For Sale

      $1,750,000

      3790 PEACE RIVER DR, PUNTA GORDA, FL 33983

      • 4 Beds
      • 4 Baths
      • 3,712 Sq.Ft.
    • 1631 CASEY KEY DR For Sale

      $1,695,000

      1631 CASEY KEY DR, PUNTA GORDA, FL 33950

      • 4 Beds
      • 3 Baths
      • 2,606 Sq.Ft.
    • 3280 N ACCESS RD For Sale

      $1,500,000

      3278-3294 N ACCESS RD, ENGLEWOOD, FL 34224

    • 116 NORTHSHORE TER For Sale

      $1,415,000

      116 NORTHSHORE TER, PUNTA GORDA, FL 33980

      • 3 Beds
      • 3 Baths
      • 2,512 Sq.Ft.
    • 0997160030 BOLANDER TER For Sale

      $1,390,000

      0997160030 BOLANDER TER, NORTH PORT, FL 34287

      • 4 Beds
      • 3 Baths
      • 2,609 Sq.Ft.
    • 112 NORTHSHORE TER For Sale

      $1,365,000

      112 NORTHSHORE TER, PUNTA GORDA, FL 33980

      • 3 Beds
      • 3 Baths
      • 2,512 Sq.Ft.
    • 3564 PEACE RIVER DR For Sale

      $1,339,000

      3564 PEACE RIVER DR, PUNTA GORDA, FL 33983

      • 3 Beds
      • 3 Baths
      • 2,437 Sq.Ft.
    • 17389 OHARA DR Pending

      $1,299,000

      17389 OHARA DR, PORT CHARLOTTE, FL 33948

      • 3 Beds
      • 3 Baths
      • 2,643 Sq.Ft.
    • 14150 OSTROM AVE For Sale

      $1,290,000

      14150 OSTROM AVE, PORT CHARLOTTE, FL 33981

      • 4 Beds
      • 3 Baths
      • 2,609 Sq.Ft.
    • 2385 PAPPAS TER For Sale

      $1,290,000

      2385 PAPPAS TER, PORT CHARLOTTE, FL 33981

      • 4 Beds
      • 3 Baths
      • 2,609 Sq.Ft.
    • 1434 CASEY KEY DR For Sale

      $1,225,000

      1434 CASEY KEY DR, PUNTA GORDA, FL 33950

      • 4 Beds
      • 4 Baths
      • 2,513 Sq.Ft.
    • 2839 CORAL WAY For Sale

      $1,199,000

      2839 CORAL WAY, PUNTA GORDA, FL 33950

      • 3 Beds
      • 4 Baths
      • 4,639 Sq.Ft.
    • 12299 ALBRECHT TER For Sale

      $1,190,000

      12299 ALBRECHT TER, PORT CHARLOTTE, FL 33981

      • 4 Beds
      • 3 Baths
      • 2,609 Sq.Ft.
    • 630 CORONADO DR For Sale

      $1,149,900

      630 CORONADO DR, PUNTA GORDA, FL 33950

      • 3 Beds
      • 2 Baths
      • 2,159 Sq.Ft.
    • 360 CAPRI ISLES CT For Sale

      $1,099,000

      360 CAPRI ISLES CT, PUNTA GORDA, FL 33950

      • 3 Beds
      • 3 Baths
      • 2,528 Sq.Ft.
    • 5348 PALANGOS DR For Sale

      $949,000

      5348 PALANGOS DR, PUNTA GORDA, FL 33982

      • 4 Beds
      • 3 Baths
      • 2,890 Sq.Ft.
    • 9610 SW YACHT DR For Sale

      $875,000

      9610 SW YACHT DR, ARCADIA, FL 34269

      • 5 Beds
      • 4 Baths
      • 3,684 Sq.Ft.
    • 197 TROPICANA DR #1522 For Sale

      $799,900

      197 TROPICANA DR #1522, PUNTA GORDA, FL 33950

      • 3 Beds
      • 3 Baths
      • 2,495 Sq.Ft.
    • 138 COLONIAL ST SW For Sale

      $795,000

      138 COLONIAL ST SW, PORT CHARLOTTE, FL 33952

      • 3 Beds
      • 3 Baths
      • 2,549 Sq.Ft.
    • 258 SHREVE ST For Sale

      $714,900

      258 SHREVE ST, PUNTA GORDA, FL 33950

      • 3 Beds
      • 2 Baths
      • 1,855 Sq.Ft.
    • 28401 COCO PALM DR For Sale

      $699,000

      28401 COCO PALM DR, PUNTA GORDA, FL 33982

      • 3 Beds
      • 3 Baths
      • 3,164 Sq.Ft.
    • 2358 EL CERITO CT For Sale

      $674,900

      2358 EL CERITO CT, PUNTA GORDA, FL 33950

      • 3 Beds
      • 3 Baths
      • 1,904 Sq.Ft.
    • 345 BELAIRE CT For Sale

      $664,900

      345 BELAIRE CT, PUNTA GORDA, FL 33950

      • 3 Beds
      • 2 Baths
      • 2,078 Sq.Ft.
    • 1241 ROYAL TERN DR For Sale

      $599,000

      1241 ROYAL TERN DR, PUNTA GORDA, FL 33950

      • 3 Beds
      • 2 Baths
      • 1,849 Sq.Ft.
    • 93 VIVANTE BLVD #9336 For Sale

      $599,000

      93 VIVANTE BLVD #9336, PUNTA GORDA, FL 33950

      • 3 Beds
      • 3 Baths
      • 2,398 Sq.Ft.
    • 1111 LA SALINA CT For Sale

      $575,000

      1111 LA SALINA CT, PUNTA GORDA, FL 33950

      • 3 Beds
      • 2 Baths
      • 1,939 Sq.Ft.
    • 621 TRABUE AVE For Sale

      $560,000

      621 TRABUE AVE, PUNTA GORDA, FL 33950

      • 4 Beds
      • 2 Baths
      • 2,234 Sq.Ft.
    • 8313 SW SAND CRANE CIR For Sale

      $520,000

      8313 SW SAND CRANE - LOT 15 CIR, ARCADIA, FL 34269

      • 1 Bed
      • 1 Bath
      • 1,000 Sq.Ft.
    • 1615 VIA BIANCA Pending

      $515,000

      1615 VIA BIANCA, PUNTA GORDA, FL 33950

      • 3 Beds
      • 3 Baths
      • 1,994 Sq.Ft.
    • 123 GILL ST For Sale

      $499,000

      123 GILL ST, PUNTA GORDA, FL 33950

      • 4 Beds
      • 3 Baths
      • 1,960 Sq.Ft.
    • 8275 SW SAND CRANE CIR Pending

      $499,000

      8275 SW SAND CRANE - LOT 13 CIR, ARCADIA, FL 34269

      • 1 Bed
      • 1 Bath
      • 844 Sq.Ft.
    • 8664 SW SAND CRANE CIR For Sale

      $479,000

      8664 SW SAND CRANE - LOT 46 CIR, ARCADIA, FL 34269

      • 1 Bed
      • 1 Bath
      • 865 Sq.Ft.
    • 23439 FREEPORT AVE For Sale

      $449,900

      23439 FREEPORT AVE, PORT CHARLOTTE, FL 33954

      • 3 Beds
      • 2 Baths
      • 2,116 Sq.Ft.
    • 8234 SW SAND CRANE CIR For Sale

      $449,000

      8234 SW SAND CRANE LOT 93 CIR, ARCADIA, FL 34269

      • 1 Bed
      • 1 Bath
      • 780 Sq.Ft.
    • 8574 SW SAND CRANE CIR For Sale

      $449,000

      8574 SW SAND CRANE - LOT 53 CIR, ARCADIA, FL 34269

      • 1 Bed
      • 1 Bath
      • 750 Sq.Ft.
    • 3308 PURPLE MARTIN DR #122 For Sale

      $439,900

      3308 PURPLE MARTIN DR #122, PUNTA GORDA, FL 33950

      • 3 Beds
      • 2 Baths
      • 1,882 Sq.Ft.
    • 7012 WATERFORD PKWY For Sale

      $380,000

      7012 WATERFORD PKWY, PUNTA GORDA, FL 33950

      • 4 Beds
      • 2 Baths
      • 1,846 Sq.Ft.
    • 2333 BENGAL CT Pending

      $379,000

      2333 BENGAL CT, PUNTA GORDA, FL 33983

      • 3 Beds
      • 2 Baths
      • 1,784 Sq.Ft.
    • 23271 MCQUADE AVE Pending

      $340,000

      23271 MCQUADE AVE, PORT CHARLOTTE, FL 33980

      • 3 Beds
      • 2 Baths
      • 1,827 Sq.Ft.
    • 1910 NW 27TH PL For Sale

      $339,000

      1910 NW 27TH PL, CAPE CORAL, FL 33993

      • 3 Beds
      • 2 Baths
      • 1,400 Sq.Ft.
    • 3216 PURPLE MARTIN DR #122 For Sale

      $325,000

      3216 PURPLE MARTIN DR #122, PUNTA GORDA, FL 33950

      • 2 Beds
      • 2 Baths
      • 1,460 Sq.Ft.
    • 25188 MARION AVE #E212 For Sale

      $316,000

      25188 MARION AVE #E212, PUNTA GORDA, FL 33950

      • 3 Beds
      • 2 Baths
      • 2,191 Sq.Ft.
    View All Properties

    Follow Us On Instagram